CHECK INSTRUMENT PANEL JUNCTION BLOCK ASSEMBLY AND BODY ECU
Remove the body ECU from the instrument panel junction block assembly.
for LHD: Click here
for RHD: Click here
| *A | for RHD | *B | for LHD |
| *1 | Instrument Panel Junction Block Assembly | - | - |
| *1 | Body ECU | - | - |
Measure the voltage and resistance according to the value(s) in the table below.
Tech Tips
Measure the values on the wire harness side with the connectors disconnected.
| Terminal No. (Symbol) | Wiring Color | Terminal Description | Condition | Specified Condition |
|---|---|---|---|---|
| A-1 (GND) - Body ground | - | Ground | Always | Below 1 Ω |
| A-6 (BECU) - Body ground | - | Battery power supply | Always | 11 to 14 V |
| A-7 (IG) - Body ground | - | Ignition power supply | Ignition switch ON | 11 to 14 V |
| Ignition switch off | Below 1 V |
Install the body ECU to the instrument panel junction block assembly.
for LHD: Click here
for RHD: Click here
Measure the voltage and check for pulses according to the value(s) in the table below.
| Terminal No. (Symbol) | Wiring Color | Terminal Description | Condition | Specified Condition |
|---|---|---|---|---|
| 2D-4 (BDSU) - Body ground*2 | V - Body ground | Back door opener switch input | Back door opener switch assembly (open switch) off → on | Pulse generation |
| 2H-5 (GSW) - Body ground | B - Body ground | Unlock detection input | Ignition switch ON | 2.8 to 4.3 V |
| 2N-2 (ACT+) - Body ground | LG - Body ground*4 LA-B - Body ground*9 |
Door lock motor lock drive output | Door control switch (power window regulator master switch assembly) or driver door key cylinder off | Below 1 V |
| Door control switch (power window regulator master switch assembly) or driver door key cylinder locked | 11 to 14 V | |||
| 2N-3 (ACT-) - Body ground | GR - Body ground*4 LA-W - Body ground*9 |
Door lock motor unlock drive output | Door control switch (power window regulator master switch assembly) or driver door key cylinder off | Below 1 V |
| Door control switch (power window regulator master switch assembly) or driver door key cylinder unlocked | 11 to 14 V | |||
| 2M-1 (TR+) - Body ground*1 | LA-R - Body ground | Back door lock motor unlock drive output | Back door closed | Below 1 V |
| Back door open | 11 to 14 V | |||
| 2L-4 (DCTY) - Body ground | R - Body ground | Driver door courtesy light switch input | Driver door open | Below 1 V |
| Driver door closed | Pulse generation | |||
| 2Q-1 (DCTY) - Body ground | B - Body ground | Driver door courtesy light switch input | Driver door open | Below 1 V |
| Driver door closed | Pulse generation | |||
| 2Q-2 (ACTY) - Body ground | Y - Body ground | All door courtesy light switches input except driver door | Except driver door open | Below 1 V |
| Except driver door closed | Pulse generation | |||
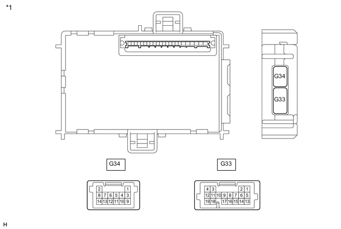
| G33-4 (UL3) - Body ground*3, *7 | BE - Body ground | Driver door key-linked unlock input | Driver door key cylinder turned to unlock position | Below 1 V |
| Driver door key cylinder off | Pulse generation | |||
| G33-5 (SPD) - Body ground | V - Body ground | Signal output to combination meter assembly | Ignition switch ON, wheel being rotated | Pulse generation |
| G33-14 (PCTY) - Body ground | LG - Body ground | Front passenger door courtesy light switch input | Front passenger door open | Below 1 V |
| Front passenger door closed | Pulse generation | |||
| G33-19 (L1) - Body ground*2 | LG - Body ground | Door control switch input | Door control switch locked | Below 1 V |
| Door control switch off | Pulse generation | |||
| G33-12 (UL1) - Body ground*2 | L - Body ground | Door control switch input | Door control switch unlocked | Below 1 V |
| Door control switch off | Pulse generation | |||
| G33-18 (L2) - Body ground | GR - Body ground | Driver door key-linked lock input | Driver door key cylinder turned to lock position | Below 1 V |
| Driver door key cylinder off | Pulse generation | |||
| G33-11 (UL2) - Body ground*8 | BE - Body ground | Driver door key-linked unlock input | Driver door key cylinder turned to unlock position | Below 1 V |
| Driver door key cylinder off | Pulse generation | |||
| G33-15 (LSWD) - Body ground | R - Body ground | Driver door unlock detection switch input | Driver door unlocked | Below 1 V |
| Driver door locked | Pulse generation | |||
| G33-2 (LSWP) - Body ground | Y - Body ground | Except driver door unlock detection switch input | Except driver door unlocked | Below 1 V |
| Except driver door locked | Pulse generation | |||
| G33-8 (KSW) - Body ground*2 | G - Body ground | Unlock warning switch input | No key in ignition key cylinder | Pulse generation |
| Key in ignition key cylinder | Below 1 V | |||
| G28-1 (ACTG) - Body ground*4 | GR - Body ground | Collision door lock release signal | Collision door lock release function does not operate | Below 2 V*5 7.3 to 9.9 V*6 |
| Collision door lock release function operates | Below 1 V |
*1: w/o Power Back Door System
*2: w/o Smart Entry and Start System
*3: for RHD
*4: w/ Door Control Battery
*5: Door control battery not charged
*6: Door control battery charging or charged
*7: w/ Double Locking System
*8: w/o Double Locking System
*9: w/o Door Control Battery
CHECK DOUBLE LOCK DOOR CONTROL RELAY ASSEMBLY (w/ Double Locking System)
Disconnect the N53 double lock door control relay assembly connector.
Measure the voltage and resistance according to the value(s) in the table below.
| Tester Connection | Wiring Color | Terminal Description | Condition | Specified Condition |
|---|---|---|---|---|
| N53-1 (+B) - Body ground | B - Body ground | Battery power supply | Always | 11 to 14 V |
| N53-7 (CPUB) - Body ground | W - Body ground | Battery power supply | Always | 11 to 14 V |
| N53-14 (GND) - Body ground | W-B - Body ground | Ground | Always | Below 1 Ω |
Reconnect the N53 double lock door control relay assembly connector.
Measure the voltage and check for pulses according to the value(s) in the table below.
| Tester Connection | Wiring Color | Terminal Description | Condition | Specified Condition |
|---|---|---|---|---|
| N53-3 (ACTS) - Body ground | L - Body ground | All door double lock motor set on output | Double lock unset | Below 1 V |
| Double lock set | 11 to 14 V | |||
| N53-4 (ACTR) - Body ground | B - Body ground | All door double lock motor set off output | Double lock set | Below 1 V |
| Double lock unset | 11 to 14 V | |||
| N53-5 (DLPD) - Body ground | W - Body ground | Front RH double lock position switch input | Double lock unset | Pulse generation |
| Double lock set | Below 1 V | |||
| N53-6 (DLPP) - Body ground | P - Body ground | Front LH double lock position switch input | Double lock unset | Pulse generation |
| Double lock set | Below 1 V | |||
| N53-9 (LIN) - Body ground | V - Body ground | LIN communication signal | Ignition switch ON | Pulse generation |
| N53-11 (DLPR) - Body ground | Y - Body ground | Rear RH double lock position switch input | Double lock unset | Pulse generation |
| Double lock set | Below 1 V | |||
| N53-12 (DLPL) - Body ground | R - Body ground | Rear LH double lock position switch input | Double lock unset | Pulse generation |
| Double lock set | Below 1 V |
CHECK AIRBAG SENSOR ASSEMBLY
for Type A: Click here
for Type B: Click here
CHECK COMBINATION METER ASSEMBLY