AUDIO AND VISUAL SYSTEM, Diagnostic DTC:B1579

DTC Code DTC Name
B1579 Voice Recognition Microphone Disconnected

DESCRIPTION

The radio receiver assembly and telephone microphone assembly are connected to each other using the microphone connection detection signal lines.

This DTC is stored when a microphone connection detection signal line is disconnected.

DTC No. Detection Item DTC Detection Condition Trouble Area
B1579 Voice Recognition Microphone Disconnected Telephone microphone signal is lost.
  • Radio receiver assembly

  • Telephone microphone assembly

  • Harness or connector

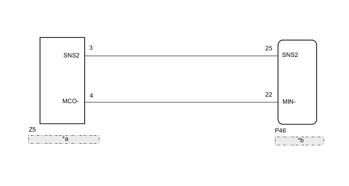
WIRING DIAGRAM

B000WHYE01
*a Telephone Microphone Assembly
*b Radio Receiver Assembly

CAUTION / NOTICE / HINT

Note

The following malfunctions may occur if a radio receiver assembly from another vehicle is installed to this vehicle. Therefore, when replacing the radio receiver assembly, be sure to replace it with new one.


  • Communication malfunction DTC is output

  • Does not operate normally

Tech Tips

Depending on the parts that are replaced during vehicle inspection or maintenance, performing initialization, registration or calibration may be needed. Refer to Precaution for Audio and Visual System.

Click here

PROCEDURE


  1. CHECK HARNESS AND CONNECTOR (RADIO RECEIVER ASSEMBLY - TELEPHONE MICROPHONE ASSEMBLY)


    1. Disconnect the P46 radio receiver assembly connector.

    2. Disconnect the Z5 telephone microphone assembly connector.

    3. Measure the resistance according to the value(s) in the table below.

      Standard Resistance
      Tester Connection Condition Specified Condition
      P46-25 (SNS2) - Z5-3 (SNS2) Always Below 1 Ω
      P46-22 (MIN-) - Z5-4 (MCO-) Always Below 1 Ω
      P46-25 (SNS2) - Body ground Always 10 kΩ or higher
      P46-22 (MIN-) - Body ground Always 10 kΩ or higher
      Result
      Proceed to
      OK
      NG

    NG
    OK
  2. INSPECT TELEPHONE MICROPHONE ASSEMBLY (SNS2, MCO-)


    1. Remove the telephone microphone assembly.

      Click here

    2. B000XR7N01

      Measure the resistance according to the value(s) in the table below.

      Standard Resistance
      Tester Connection Condition Specified Condition
      3 (SNS2) - 4 (MCO-) Always Below 1 Ω
      Result
      Proceed to
      OK
      NG

    OK
    NG