NAVIGATION SYSTEM Navigation Voice Circuit

DESCRIPTION

This circuit is used when the voice guidance in the navigation system is on or an incoming cellular phone voice in the "Bluetooth" hands-free system is heard.

Using this circuit, the navigation ECU sub-assembly sends the signals to the stereo component amplifier assembly.

WIRING DIAGRAM

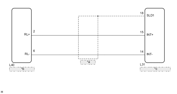
A005CO8E20
*a (Shielded)
*b Navigation ECU Sub-assembly
*c Stereo Component Amplifier Assembly

PROCEDURE


  1. CHECK HARNESS AND CONNECTOR (NAVIGATION ECU SUB-ASSEMBLY - STEREO COMPONENT AMPLIFIER ASSEMBLY)


    1. Disconnect the L40 navigation ECU sub-assembly connector.

    2. Disconnect the L31 stereo component amplifier assembly connector.

    3. Measure the resistance according to the value(s) in the table below.

      Standard Resistance
      Tester connection Condition Specified condition
      L40-2 (RL+) - L31-15 (INT+) Always Below 1 Ω
      L40-6 (RL-) - L31-14 (INT-) Always Below 1 Ω
      L31-18 (SLD1) - Body ground Always 10 kΩ or higher
      L40-2 (RL+) - Body ground Always 10 kΩ or higher
      L40-6 (RL-) - Body ground Always 10 kΩ or higher

    OK
    NG