VEHICLE STABILITY CONTROL SYSTEM, Diagnostic DTC:C146E

DTC Code DTC Name
C146E Open in ABS Solenoid Relay Circuit

DESCRIPTION

The ABS solenoid relay is built into the skid control ECU in the brake actuator assembly. The ABS solenoid relay supplies power to the ABS and TRC solenoids. The skid control ECU detects a solenoid relay malfunction by performing a self check and relay operation check.

DTC No.

Detection Item

DTC Detection Condition

Trouble Area

Note

C146E

Open in ABS Solenoid Relay Circuit

Either of the following is detected:

  1. A solenoid relay drive circuit in the skid control ECU is malfunctioning.

  2. The solenoid relay cannot be switched between on and off.

  • ABS NO. 2 fuse

  • ABS solenoid relay circuit

  • ABS solenoid relay (brake actuator assembly)

Tire pressure warning light (w/ tire pressure warning system) blinks for 63 seconds and then remains on.

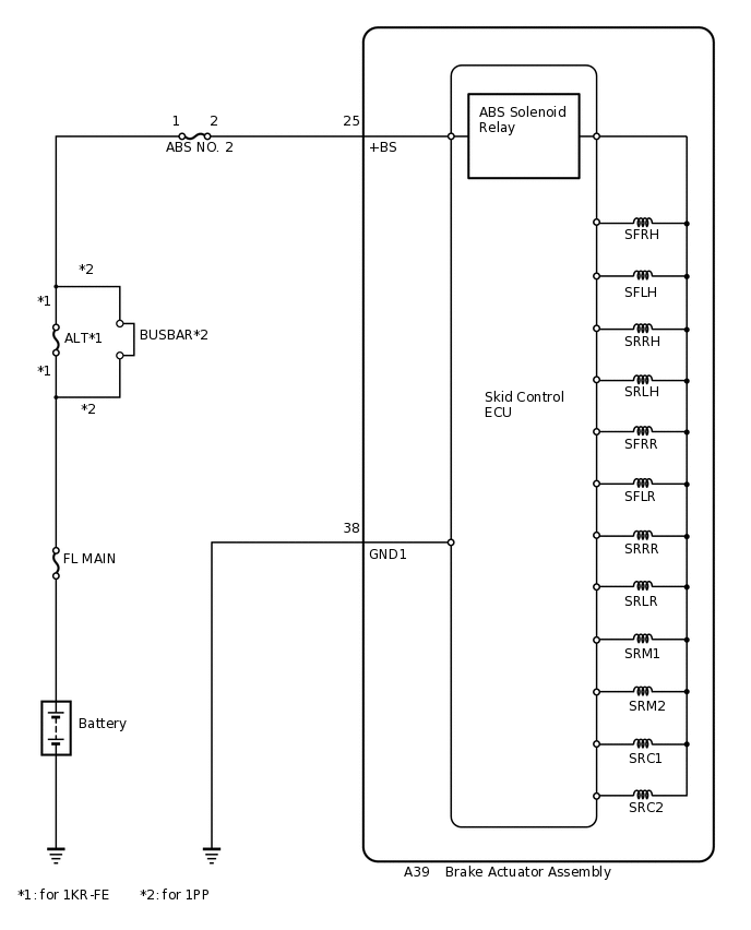
WIRING DIAGRAM

C304735E01

CAUTION / NOTICE / HINT

Note:
  • When replacing the skid control ECU (brake actuator assembly), perform system variant learning and acceleration sensor zero point calibration.

    Click here

  • Inspect the fuses for circuits related to this system before performing the following procedure.

Tip:

When C1241 and/or C1417 is output together with C146E, inspect and repair the trouble areas indicated by C1241 and/or C1417 first.

for C1241:Click here

for C1417:Click here

PROCEDURE

  1. CHECK HARNESS AND CONNECTOR (+BS TERMINAL)

    1. C305133C12

      *a

      Front view of wire harness connector

      (to Skid Control ECU (Brake Actuator Assembly))

      Make sure that there is no looseness at the locking part and the connecting part of the connector.

    2. Disconnect the A39 skid control ECU (brake actuator assembly) connector.

    3. Measure the voltage according to the value(s) in the table below.

      Standard Voltage

      Tester Connection

      Condition

      Specified Condition

      A39-25 (+BS) - Body ground

      Always

      11 to 14 V

    Result

    Proceed to

    OK

    NG

    NG

    REPAIR OR REPLACE HARNESS OR CONNECTOR (+BS CIRCUIT)

    OK
  2. CHECK HARNESS AND CONNECTOR (GND1 TERMINAL)

    1. C305133C08

      *a

      Front view of wire harness connector

      (to Skid Control ECU (Brake Actuator Assembly))

      Measure the resistance according to the value(s) in the table below.

      Standard Resistance

      Tester Connection

      Condition

      Specified Condition

      A39-38 (GND1) - Body ground

      Always

      Below 1 Ω

    Result

    Proceed to

    OK

    NG

    NG

    REPAIR OR REPLACE HARNESS OR CONNECTOR (GND1 CIRCUIT)

    OK
  3. RECONFIRM DTC

    Tip:
    • This DTC is stored when a problem is identified in the skid control ECU (brake actuator assembly).

    • The solenoid circuits are located in the skid control ECU (brake actuator assembly).

      Therefore, solenoid circuit inspection and solenoid unit inspection cannot be performed. Be sure to check if the DTC is output again before replacing the skid control ECU (brake actuator assembly).

    1. Reconnect the A39 skid control ECU (brake actuator assembly) connector.

    2. Clear the DTCs.

      Click here

      Chassis > ABS/VSC/TRC > Clear DTCs

    3. Turn the ignition switch off.

    4. Start the engine.

    5. Drive the vehicle at a speed of 20 km/h (12 mph) or more for 30 seconds or more.

    6. Check if the same DTC is output.

      Click here

      Chassis > ABS/VSC/TRC > Trouble Codes

      Result

      Result

      Proceed to

      DTC C146E is not output.

      A

      DTC C146E is output.

      B

      Tip:
      • The skid control ECU (brake actuator assembly) performs self diagnosis of the solenoid circuit after the ignition switch is turned to ON.

      • If the normal system code is output (no DTCs are output), slightly jiggle the connectors, wire harnesses, and fuses of the skid control ECU (brake actuator assembly).

      • If any DTCs are output while jiggling a connector or wire harness of the skid control ECU (brake actuator assembly), inspect and repair the connector or wire harness.

      • If no DTCs were output when reconfirming DTCs, checking for intermittent problems is necessary because it is suspected that the original DTCs were stored due to the poor connection of a connector terminal.

    A

    USE SIMULATION METHOD TO CHECK

    B

    REPLACE BRAKE ACTUATOR ASSEMBLY