ANTI-LOCK BRAKE SYSTEM SYSTEM DIAGRAM

B0024MVE06
B0024BYE04
B0025BME03
B00248NE01
Transmitting ECU (Transmitter) Receiving ECU Signal Communication Method
Skid control ECU (Brake actuator assembly) ECM Wheel speed signal CAN communication system
ECM Skid control ECU (Brake actuator assembly)
  • Shift position signal

  • Throttle position signal

  • Engine speed signal

  • Intake air temperature signal

  • Engine torque request signal

  • Accelerator pedal position signal

  • Diagnosis (TC terminal) signal

CAN communication system
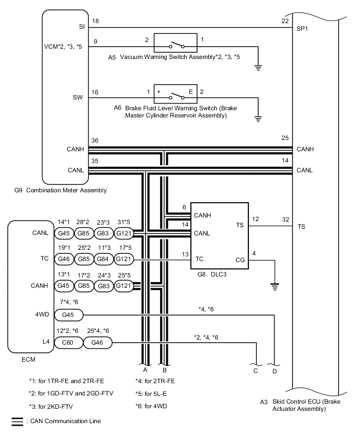
Skid control ECU (Brake actuator assembly) Combination meter assembly
  • ABS warning light signal

  • Brake warning light signal

CAN communication system
Wheel speed signal Serial communication
Combination meter assembly Skid control ECU (Brake actuator assembly) Back-up light switch signal CAN communication system
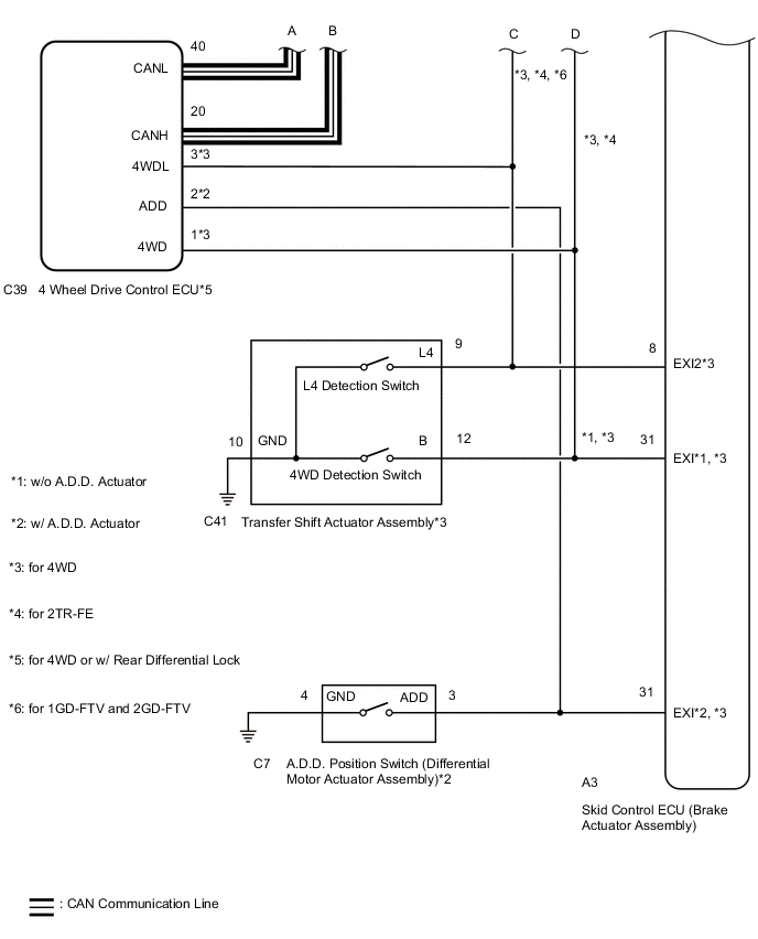
4 wheel drive control ECU*3 Skid control ECU (Brake actuator assembly)
  • 4WD position signal*1

  • L4 position signal*1

  • Rear differential lock position signal*2

CAN communication system