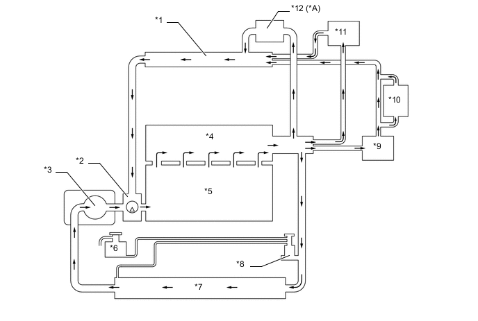
| *A | Models with Engine Oil Cooler | - | - |
| *1 | Water By-pass Pipe | *2 | Engine Water Pump Assembly |
| *3 | Water Inlet with Thermostat Sub-assembly | *4 | Cylinder Head Sub-assembly |
| *5 | Cylinder Block Sub-assembly | *6 | Radiator Reserve Tank Assembly |
| *7 | Radiator Assembly | *8 | Water Filler Sub-assembly |
| *9 | Heater Radiator Unit Sub-assembly | *10 | ATF Warmer (Transmission Oil Cooler) |
| *11 | Throttle Body with Motor Assembly | *12 | Oil Cooler Assembly |