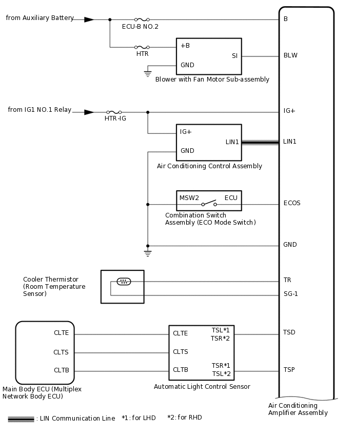
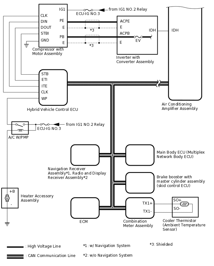
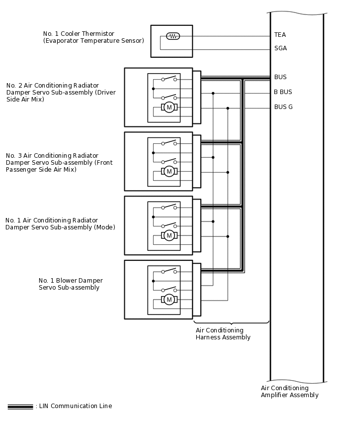
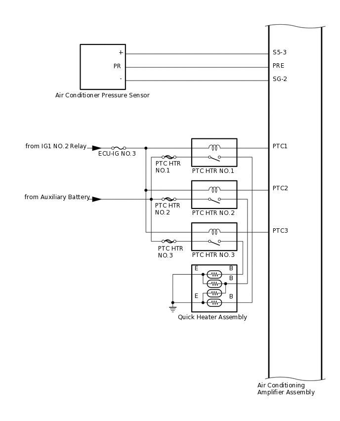
AIR CONDITIONING SYSTEM SYSTEM DIAGRAM
Sender |
Receiver |
Signal |
Communication Line |
|---|---|---|---|
Air conditioning amplifier assembly |
Hybrid vehicle control ECU |
Heater idle up request |
CAN |
ECO mode switch information |
|||
Engine ON request |
|||
Charging control inhibit |
|||
Motor cooling fan drive request |
|||
Prior air conditioning control request |
|||
Heating performance assistance request signal to transaxle system |
|||
Water pump request |
|||
Inlet state (for cooling battery) |
|||
Standby for inverter request |
|||
Compressor with motor assembly start |
|||
Compressor with motor assembly target speed |
|||
Front blower level indicator |
|||
In-vehicle temperature |
|||
Ambient temperature display |
|||
Air conditioning control state |
|||
Air conditioning amplifier assembly |
ECM |
Heater idle up request |
CAN |
Motor cooling fan drive request |
|||
Prior air conditioning control request |
|||
Heating performance assistance request signal to transaxle system |
|||
Ambient temperature before correction |
|||
Refrigerant gas pressure sensor |
|||
Ambient temperature display |
|||
Air conditioning amplifier assembly |
Brake booster with master cylinder assembly (skid control ECU) |
Ambient temperature before correction |
CAN |
Air conditioning amplifier assembly |
Main body ECU (multiplex network body ECU) |
Ambient temperature display |
CAN |
Air conditioning amplifier assembly |
Navigation receiver assembly*1 Radio and display receiver assembly*2 |
Driver side AUTO indicator |
CAN |
Air conditioning indicator |
|||
Driver side outlet auto indicator |
|||
Driver side outlet indicator |
|||
Air conditioning on-screen request |
|||
Driver side temperature display |
|||
Front passenger side temperature display |
|||
Control information |
|||
Air conditioning amplifier assembly |
Combination meter assembly |
Ambient temperature display |
CAN |
Hybrid vehicle control ECU |
Air conditioning amplifier assembly |
ECO mode indicator |
CAN |
State of STB (standby) |
|||
Compulsion recycle request |
|||
Air conditioning water pump drive |
|||
Air conditioning inverter and HV ECU communication |
|||
Air conditioning inverter STB malfunction |
|||
Air conditioning permission electric power |
|||
READY on |
|||
Air conditioning inverter main voltage |
|||
Air conditioning inverter output |
|||
Motor overload information |
|||
Motor start information |
|||
Air conditioning inverter internal power source malfunction |
|||
STB wire short |
|||
Air conditioning inverter temperature information |
|||
Self check |
|||
Thermistor cold temperature malfunction |
|||
Compressor humidity control start |
|||
BTC down |
|||
Air conditioning motor revolution |
|||
Air conditioning input power |
|||
Air conditioning motor current request |
|||
Air conditioning inverter temperature |
|||
Air conditioning inverter voltage |
|||
ECM |
Air conditioning amplifier assembly |
Engine speed data |
CAN |
Voltage of auxiliary battery |
|||
Compulsory internal air circulation command at high water temperature |
|||
Engine coolant temperature |
|||
Main body ECU (multiplex network body ECU) |
Air conditioning amplifier assembly |
Trip count |
CAN |
Time count |
|||
Auto dimmer |
|||
Destination symbol |
|||
Destination package |
|||
Steering wheel |
|||
Engine staerter condition |
|||
Air conditioning ON request |
|||
Combination meter assembly |
Air conditioning amplifier assembly |
Vehicle speed (meter to other) |
CAN |
Airbag sensor assembly |
Air conditioning amplifier assembly |
Front passenger side seat occupant status |
CAN |
Air conditioning control assembly |
Air conditioning amplifier assembly |
AUTO switch operation |
LIN |
OFF switch operation |
|||
Blower switch operation (up, down) |
|||
Mode switch operation |
|||
Front defroster switch operation |
|||
Rear defogger switch operation |
|||
DUAL switch operation |
|||
Recirculation/fresh switch operation |
|||
Air conditioning switch operation |
|||
Driver side set temperature switch operation |
|||
Front passenger side set temperature switch operation |
|||
Air conditioning amplifier assembly |
Air conditioning control assembly |
Entire front panel display instruction |
LIN |
Auto display instruction |
|||
Blower level display instruction |
|||
Air conditioning display instruction |
|||
Rec display instruction |
|||
Driver air outlet display instruction |
|||
DUAL display instruction |
|||
Entire front panel display instruction |
|||
Driver set temperature display instruction |
|||
Front passenger set temperature display instruction |
|||
Dimmer |
*1: w/ Navigation System
*2: w/ Navigation System