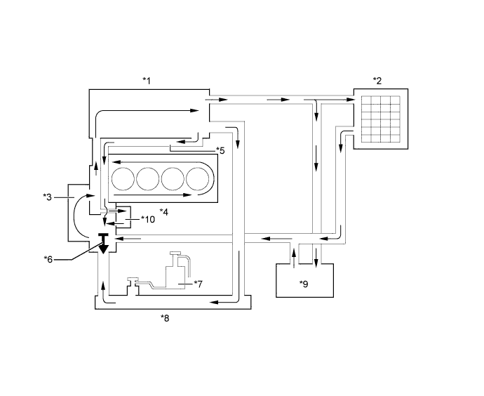
COOLING SYSTEM SYSTEM DIAGRAM

A019PU0E01
Text in Illustration
*1 Cylinder Head *2 Heater Core
*3 Water Pump *4 Cylinder Block
*5 Bypass Passage *6 Thermostat
*7 Reservoir Tank *8 Radiator
*9 Throttle with Motor Body Assembly *10 Oil Cooler Assembly (Optional Equipment)