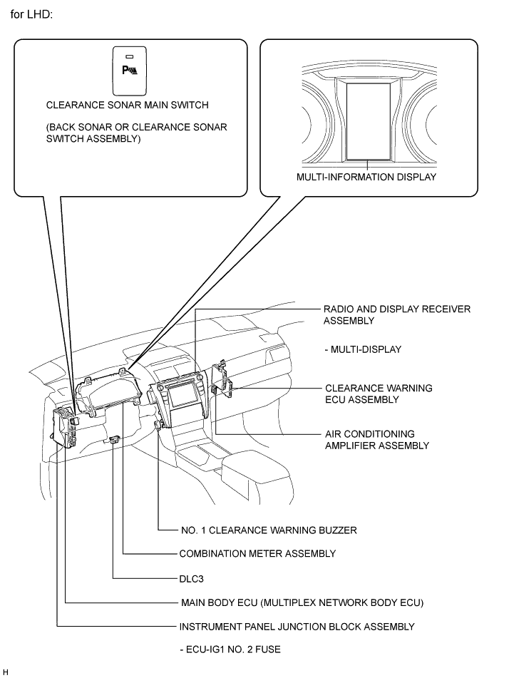
TOYOTA PARKING ASSIST-SENSOR SYSTEM PARTS LOCATION

ILLUSTRATION

A01ETJ7E01

ILLUSTRATION

A01ESW0E01

ILLUSTRATION

A01EYEAE01