POWER STEERING LINK REASSEMBLY


  1. INSTALL POWER STEERING CYLINDER TUBE OIL SEAL


    1. Install the spacer to the power steering rack housing.

      Note

      Do not damage the inside of the power steering rack housing.

    2. Apply power steering fluid to the lip of a new power steering cylinder tube oil seal.

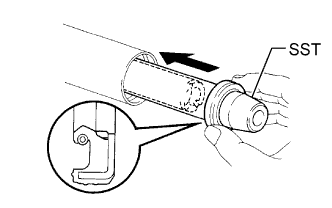
    3. A01J7G6E01

      Install the power steering cylinder tube oil seal to the rack housing at an angle.

      Note


      • Make sure that the power steering cylinder tube oil seal is installed in the correct direction as shown in the illustration.

      • Install the power steering cylinder tube oil seal at an angle of approximately 20° so that the lowermost part comes to the point, indicated by the arrow in the illustration, to prevent damage to the oil seal when it passes the 2 ports.

      • After passing both ports, proceed by pressing the oil at an angle of 10° and 0° sequentially.

    4. Using SST, push in the power steering cylinder tube oil seal by hand until the oil seal passes the 2 ports.

      SST
      09631-00200
      09950-70010   ( 09951-07360 )

      Note

      Do not turn the SST when inserting the oil seal.

    5. Install SST (09631-00200) to SST (09951-07360) upside down.

      SST
      09631-00200
      09950-70010   ( 09951-07360 )
    6. Using SST, push the power steering cylinder tube oil seal by hand so that it is level.

      SST
      09631-00200
      09950-70010   ( 09951-07360 )
    7. A01J5YKE01

      Using SST and a press, install the power steering cylinder tube oil seal.

      SST
      09631-00200
      09950-70010   ( 09951-07360 )

      Tech Tips

      Please press cylinder tube oil seal until it sit on the stopper portion.

  2. INSTALL STEERING RACK PISTON RING


    1. A01J4UNE01

      Coat a new O-ring with power steering fluid and install it on the steering rack.

    2. Stretch a new "teflon" ring with your fingers.

      Note

      Be careful not to overstretch the "teflon" ring.

    3. Coat the "teflon" ring with power steering fluid.

    4. A01J5ELE01

      Install the "teflon" ring to the steering rack's groove. Grip the ring to press it into the groove.

  3. INSTALL POWER STEERING RACK


    1. A01J7HME02

      Apply grease to the rack teeth ends.

    2. Install SST to the steering rack.

      SST
      09631-00350

      Tech Tips

      If necessary, scrape the burrs off the rack teeth end and burnish.

    3. Coat SST and the power piston oil seal with power steering fluid.

    4. Install the steering rack to the rack housing.

    5. Remove SST.

    6. A01J5E3E01

      Coat SST with power steering fluid.

      SST
      09631-00350
    7. Install SST to the steering rack opposite end.

    8. Coat the lip of a new oil seal with power steering fluid. Using SST, install the oil seal to the steering rack.

      Note


      • Slide SST and the oil seal straight without tilting them.

      • Make sure to install the oil seal facing in the correct direction.

      • Be careful not to damage the lip of the oil seal.

    9. Remove SST.

  4. INSTALL CYLINDER END STOPPER


    1. A01J5HYE01

      Apply sealant to the stopper.

    2. Using a wooden block and hammer, tap in the stopper until it is tightly installed.

      Sealant
      Toyota Genuine Adhesive 1344, Three Bond 1344 or equivalent
    3. A01J376E02

      Using SST, tighten the stopper.

      SST
      09631-20120
      Torque:
      82.5 N*m  { 841 kgf*cm, 61 ft.*lbf }
  5. TEST AIR TIGHTNESS


    1. A01J3HVE01

      Install SST to the unions of the rack housing.

      SST
      09631-12071   ( 09633-00010 )
    2. Apply 53.33 kPa (400 mmHg, 15.75 in.Hg) of vacuum for about 30 seconds.

    3. Check that there is no change in the vacuum.

      If there is a change in the vacuum, check the installation of the oil seals.

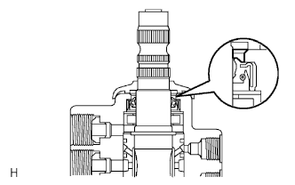
  6. INSTALL POWER STEERING CONTROL VALVE


    1. A01J4T3E01

      Apply molybdenum disulfide base grease to the needle roller bearing inside the rack housing shown in the illustration.

      Volume of grease applied
      Approximately 2 g (0.07 oz)
    2. A01J3BJE01

      Using a plastic-faced hammer and a sliding handle, lightly tap in 2 new union seats.

      Note

      Before installing the union seats, remove any dust sticking to the control valve housing.

    3. A01J4R5E01

      Install a control valve gasket and the control valve with the 2 bolts.

      Torque:
      18.1 N*m  { 185 kgf*cm, 13 ft.*lbf }
  7. INSTALL RACK GUIDE


    1. A01J3VNE01

      Install the rack guide and spring.

    2. Apply sealant to 2 or 3 threads of the rack guide spring cap.

      Sealant
      Toyota Genuine Adhesive 1344, Three Bond 1344 or equivalent
    3. Using a 12 mm socket wrench, temporarily install the spring cap.

  8. ADJUST TOTAL PRELOAD


    1. A01J3VNE02

      To prevent the steering rack teeth from damaging the lip of the oil seal, temporarily install the RH and LH rack ends.

    2. Using a 12 mm socket wrench, tighten the rack guide spring cap.

      Torque:
      25 N*m  { 250 kgf*cm, 18 ft.*lbf }
    3. Loosen the cap 30°.

    4. A01J4Z1E02

      Using SST, turn the control valve shaft right and left 1 or 2 times. The rack end will move in and out.

      SST
      09616-00011
    5. Using a 12 mm socket wrench, loosen the cap until the rack guide spring does not function.

    6. A01J79BE02

      Using SST, a torque wrench and 12 mm socket wrench, tighten the cap until the preload is within the specification.

      SST
      09616-00011
      Torque:
      Preload (turning)
      0.8 to 1.6 N*m  { 8.2 to 16.3 kgf*cm, 7.1 to 14.2 in.*lbf }

      Note

      Perform adjustments in the tightening direction of the spring cap.

    7. A01J6MWE01

      Using SST, a torque wrench and 12 mm socket wrench, tighten the cap until the preload is within the specification.

      SST
      09922-10010
      Torque:
      Preload (turning)
      1.0 to 1.8 N*m  { 10.2 to 18.4 kgf*cm, 8.9 to 15.9 in.*lbf }

      Note

      Perform adjustments in the tightening direction of the spring cap.

      Tech Tips


      • Use a torque wrench with a fulcrum length of 345 mm (13.58 in).

      • This torque value is effective when SST is parallel to the torque wrench.

    8. Apply sealant to 2 or 3 threads of the lock nut.

      Sealant
      Toyota Genuine Adhesive 1344, Three Bond 1344 or equivalent
    9. Temporarily install the lock nut.

    10. A01J56IE02

      Using SST, recheck the total preload.

      SST
      09616-00011
      Torque:
      Preload (turning)
      1.0 to 1.8 N*m  { 10.2 to 18.4 kgf*cm, 8.9 to 15.9 in.*lbf }
    11. Remove the RH and LH rack ends.

  9. INSPECT POWER STEERING RACK


    1. A01J384E01

      Insert a wire 20 mm (0.79 in.) into the vent hole of the steering rack, and ensure that the vent hole is not clogged with grease.

      Note

      If the hole is clogged, the pressure inside the boot will change after it is assembled and the steering wheel is turned.

  10. INSTALL STEERING RACK END SUB-ASSEMBLY


    1. A01J48OE01

      Install 2 new claw washers to the power steering rack while aligning the notch on the steering rack end with the claw.

    2. Temporarily install the 2 steering rack ends to the power steering rack.

    3. Fill up the ball joint of the steering rack ends with MP grease.

    4. A01J77KE01

      Using SST, install the power steering rack end (LH side) to the power steering rack.

      SST
      09922-10010
      Torque:
      103 N*m  { 1050 kgf*cm, 76 ft.*lbf, for use without SST }
      93.6 N*m  { 954 kgf*cm, 69 ft.*lbf, for use with SST }

      Note


      • Rotate SST in the direction shown in the illustration.

      • Use a torque wrench with a fulcrum length of 345 mm (13.58 in.).

    5. Using SST and a wrench, install the power steering rack (LH side).

      SST
      09922-10010
      Torque:
      103 N*m  { 1050 kgf*cm, 76 ft.*lbf, for use without SST }
      93.6 N*m  { 954 kgf*cm, 69 ft.*lbf, for use with SST }

      Note


      • Rotate SST in the direction shown in the illustration.

      • Use a torque wrench with a fulcrum length of 345 mm (13.58 in.).

    6. A01J593E01

      Using a brass bar and hammer, stake the 2 claw washers (LH and RH side).

      Note

      Do not strike the steering rack.

  11. INSTALL STEERING RACK BOOT LH


    1. Install the boot.

      Note

      Be careful not to damage or twist the boot.

  12. INSTALL STEERING RACK BOOT RH

    Tech Tips

    Use the same procedures described for the LH side.

  13. INSTALL STEERING RACK BOOT CLAMP LH


    1. A01J4TCE02

      Using SST, tighten the rack boot clamp, as shown in the illustration.

      SST
      09240-00020
      09521-24010
      Standard clearance
      3.0 mm (0.118 in.) or less

      Note

      Be careful not to damage the boot.

      Tech Tips

      Mark the RH and LH boots.

      Note

      If the clamp is damaged, replace it with a new one.

  14. INSTALL STEERING RACK BOOT CLAMP RH

    Tech Tips

    Use the same procedures described for the LH side.

  15. INSTALL STEERING RACK BOOT CLIP LH


    1. Using pliers, install the clip.

  16. INSTALL STEERING RACK BOOT CLIP RH

    Tech Tips

    Use the same procedures described for the LH side.

  17. INSTALL POWER STEERING GEAR ASSEMBLY


    1. A01J6CPE01

      Using SST, check that the rack boot stretches smoothly when the control valve shaft is being rotated.

      SST
      09616-00011
    2. A01J58EE02

      Apply MP grease as shown in the illustration.

    3. Install the dust cover.

  18. INSTALL STEERING TURN PRESSURE TUBE


    1. A01J649E02

      Apply power steering fluid to 2 new O-rings. Using a union nut wrench, install the 2 O-rings and the LH turn pressure tube.

      Torque:
      12.5 N*m  { 127 kgf*cm, 9 ft.*lbf }

      Note

      Use the formula to calculate special torque values for situations where a union nut wrench is combined with a torque wrench Click here.

    2. Apply power steering fluid to new O-ring. Using a union nut wrench, install the O-ring and one side of the RH turn pressure tube.

      Torque:
      12.5 N*m  { 127 kgf*cm, 9 ft.*lbf }

      Note

      Use the formula to calculate special torque values for situations where a union nut wrench is combined with a torque wrench Click here.