ROOF HEADLINING (for Wagon) DISASSEMBLY


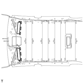
  1. REMOVE VANITY LIGHT ASSEMBLY

    A00OSUSE02
    Text in Illustration
    *1 Claw (A)
    *2 Claw (B)
    *3 Bulb Holder

    Tech Tips

    Use the same procedure to remove the vanity light on the other side.


    1. Detach the 2 claws (A) and separate the bulb holder from the vanity light as shown in the illustration.

    2. Detach the claw (B) and remove the vanity light.

  2. REMOVE NO. 1 ROOF SILENCER PAD (w/o Roof Sunshade System)

    A00ORRJ

    1. Remove the 3 No. 1 roof silencer pads.

  3. REMOVE NO. 2 ROOF SILENCER PAD (w/o Roof Sunshade System)

    A00OU4X

    1. Remove the 2 No. 2 roof silencer pads.

  4. REMOVE NO. 3 ROOF SILENCER PAD (w/o Roof Sunshade System)

    A00OTAI

    1. Remove the No. 3 roof silencer pad.

  5. REMOVE CENTER ROOF HEADLINING PAD (w/o Roof Sunshade System)

    A00OSLV

    1. Remove the 2 center roof headlining pads.

  6. REMOVE ROOF HEADLINING PAD END

    A00OQTW

    Tech Tips

    Use the same procedure for both roof headlining pad ends.


    1. Remove the roof headlining pad end.

  7. REMOVE NO. 1 ROOF WIRE


    1. w/o Roof Sunshade System:


      1. Turn the visor connectors approximately 90° clockwise and remove them from the roof headlining.

      2. Remove each piece of tape and the No. 1 roof wire.

        A00OTUNE02
    2. w/ Roof Sunshade System:


      1. Turn the visor connectors approximately 90° clockwise and remove them from the roof headlining.

      2. Remove each piece of tape and the No. 1 roof wire.

        A00OU4JE02
  8. REMOVE AMPLIFIER ANTENNA ASSEMBLY


    1. w/o Panorama Roof, w/o Digital Audio Broadcasting:


      1. Remove all the tape and the antenna cord from the roof headlining.

        A010KS9
    2. w/o Panorama Roof, w/ Digital Audio Broadcasting:


      1. Remove all the tape and the antenna cord from the roof headlining.

        A010G72
    3. w/ Panorama Roof, w/o Digital Audio Broadcasting


      1. Remove all the tape and the antenna cord from the roof headlining.

        A010K7U
    4. w/ Panorama Roof, w/ Digital Audio Broadcasting:


      1. Remove all the tape and the antenna cord from the roof headlining.

        A010K2T