FRONT UPPER SUSPENSION ARM REASSEMBLY


  1. INSTALL FRONT UPPER BALL JOINT DUST COVER LH

    A015BLVE03

    1. Pack the upper arm ball joint with MP grease.

      Grease capacity
      8.0 g (0.282 oz.)
    2. Apply MP grease to the locations shown in the illustration.

      Note

      Do not apply MP grease to the tapered or threaded parts of the ball joint.

    3. Install the dust cover to the upper arm.

    4. A0157LK

      Using a snap ring expander, install the dust cover set ring.

      Note

      Make sure the set ring is securely installed in the groove.

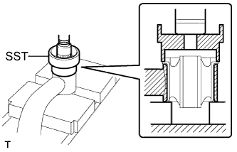
  2. INSTALL FRONT SUSPENSION UPPER ARM BUSH

    A01596XE01

    1. Using SST and a press, press in a new bush.

      SST
      09710-26011   ( 09710-05061 )

      Tech Tips

      Press in the rear side bush using the same procedure as for the front side.