VEHICLE STABILITY CONTROL SYSTEM VSC OFF Switch Circuit

DESCRIPTION

The skid control ECU assembly is connected to the combination meter assembly via CAN communication.

Pressing the VSC OFF switch turns off TRC operation, and pressing and holding this switch turns off TRC and VSC operation.

If TRC and VSC operations are turned off, the TRC OFF message will be displayed on the multi-information display and the VSC OFF indicator light will come on.

When the 4WD control switch (transfer position switch) set to L4, VSC is prohibited and the VSC OFF indicator light turns on.

When the rear differential is locked, VSC is prohibited, and the VSC OFF and TRC OFF indicator lights turn on.

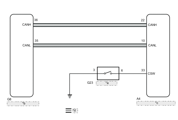
WIRING DIAGRAM

B003MT4E78
*a VSC OFF Switch
*b Combination Meter Assembly
*c Skid Control ECU (Brake Actuator Assembly)
*d CAN Communication Line

CAUTION / NOTICE / HINT

Note


  • When replacing the skid control ECU (brake actuator assembly), perform zero point calibration and store system information.

    Click here

  • As there may be malfunctions in the touch select 2-4 and high-low system related to when the transfer operates in L4, check the touch select 2-4 and high-low system first.

    Click here

PROCEDURE


  1. CHECK CAN COMMUNICATION SYSTEM


    1. Check if CAN communication system DTCs are output.

      Click here

      Result
      Result Proceed to
      DTCs are not output. A
      DTCs are output. B

    B
    A
  2. CHECK IF SKID CONTROL ECU ASSEMBLY CONNECTOR IS SECURELY CONNECTED


    1. Check if the skid control ECU assembly (brake actuator assembly) connector is securely connected.

      OK
      The connector is securely connected.
      Result
      Proceed to
      OK
      NG

    NG
    OK
  3. READ VALUE USING GTS (TRC/VSC OFF MODE)


    1. Reconnect the A4 skid control ECU (brake actuator assembly) connector.

    2. Connect the GTS to the DLC3.

    3. Turn the ignition switch to ON.

    4. Select the Data List on the GTS.

      Click here


      Chassis > ABS/VSC/TRC > Data List
      Tester Display Measurement Item Range Normal Condition Diagnostic Note
      TRC/VSC Off Mode TRC/VSC off mode Normal, TRC OFF, Unknown or VSC OFF

      Normal: Normal mode

      TRC OFF: TRC off mode

      VSC OFF: VSC off mode

      Unknown: Unspecified

      Chassis > ABS/VSC/TRC > Data List
      Tester Display
      TRC/VSC Off Mode
    5. Check that the indicator light and mode condition on the GTS change according to VSC OFF switch operation.

      Standard
      Switch Operation Mode Condition Display Multi-information Display (TRC OFF Message) VSC OFF Indicator Light
      Not pressed Normal Not displayed Does not come on
      Pressing the VSC OFF switch TRC OFF Displayed Does not come on
      Pressing and holding the VSC OFF switch VSC OFF Displayed Comes on
      Result
      Result Proceed to
      Indicator light and mode condition display do not change. A
      Mode condition display is normal, but indicator light does not change. B
      Indicator light and mode condition display are normal. C

    B
    C
    A
  4. CHECK FOR DIFFERENTIAL SYSTEM


    1. Connect the GTS to the DLC3.

    2. Turn the ignition switch to ON.

    3. Turn the GTS on.

    4. Enter the following menus: Powertrain / Four Wheel Drive / Trouble Codes.

    5. Check for DTCs.


      Powertrain > Four Wheel Drive > Trouble Codes
      Result
      Proceed to
      DTCs are not output
      DTCs are output

    DTCs are output
    DTCs are not output
  5. PERFORM ACTIVE TEST USING GTS (MULTI-INFORMATION DISPLAY AND VSC OFF INDICATOR LIGHT)


    1. Select the Active Test on the GTS.

      Click here


      Chassis > ABS/VSC/TRC > Active Test
      Tester Display Measurement Item Control Range Diagnostic Note
      TRC(TRAC) OFF Indicator Light Multi-information display (TRC OFF message) Display ON/OFF

      Observe combination meter assembly

      Vehicle condition: Vehicle stopped

      VSC OFF Indicator Light VSC OFF indicator light Indicator light ON/OFF

      Observe combination meter assembly

      Vehicle condition: Vehicle stopped


      Chassis > ABS/VSC/TRC > Active Test
      Tester Display
      TRC(TRAC) OFF Indicator Light

      Chassis > ABS/VSC/TRC > Active Test
      Tester Display
      VSC OFF Indicator Light
    2. Check the multi-information display (TRC OFF message) and VSC OFF indicator light on the combination meter assembly turn ON or OFF in accordance with the GTS operation.

      OK
      The multi-information display (TRC OFF message) and VSC OFF indicator light turn ON or OFF in accordance with the GTS operation.
      Result
      Proceed to
      OK
      NG

    NG
    OK
  6. INSPECT VSC OFF SWITCH


    1. Turn the ignition switch off.

    2. Remove the VSC OFF switch.

      Click here

    3. Inspect the VSC OFF switch.

      Click here

      OK
      The VSC OFF switch operates normally.
      Result
      Proceed to
      OK
      NG

    NG
    OK
  7. CHECK HARNESS AND CONNECTOR (BRAKE ACTUATOR ASSEMBLY - VSC OFF SWITCH)


    1. Disconnect the A4 skid control ECU (brake actuator assembly) connector.

    2. Measure the resistance according to the value(s) in the table below.

      Standard Resistance
      Tester Connection Condition Specified Condition
      A4-33 (CSW) - G23-6 Always Below 1 Ω
      A4-33 (CSW) or G23-6 - Body ground Always 10 kΩ or higher
      G23-3 - Body ground Always Below 1 Ω
      Result
      Proceed to
      OK
      NG

    OK
    NG
  8. INSPECT COMBINATION METER ASSEMBLY


    1. Turn the ignition switch off.

    2. Perform the Active Test of the combination meter assembly using the GTS.

      Click here


      Body Electrical > Combination Meter > Active Test
      Tester Display
      Meter Display 1

      Body Electrical > Combination Meter > Active Test
      Tester Display
      Indicat. VSC OFF
    3. Check the combination meter assembly.

      OK
      The multi-information display and VSC OFF indicator light turns on or off in accordance with the GTS operation.
      Result
      Proceed to
      OK
      NG

    OK
    NG