АУДИОВИЗУАЛЬНАЯ СИСТЕМА Ошибка воспроизведения/опознавания в аудиосистеме с модулем USB

ОПИСАНИЕ

При подключении USB-устройства или устройства "iPod" к разъему USB переходника стереогнезда № 1 в сборе на устройстве должны находиться воспроизводимые файлы. Устройство также должно быть опознано радиоприемником с дисплеем в сборе и осуществлять обмен данными с ним. Эта диагностическая процедура относится к случаю, когда устройство не опознается, либо файлы с устройства не воспроизводятся должным образом.

СХЕМА СОЕДИНЕНИЙ

A002A12E18
*a (Экранировано)
*b Переходник стереогнезда № 1 в сборе
*c Радиоприемник с дисплеем
*d Сигнал данных (линия передачи данных USB)

ПРЕДОСТЕРЕЖЕНИЕ / ПРИМЕЧАНИЕ / УКАЗАНИЕ

Tech Tips


  • Если USB-устройство содержит большое количество данных, воспроизведение может начинаться с задержкой.

  • При работе с USB-устройством файлы, охраняемые авторским правом, не воспроизводятся.

  • Если файлы воспроизводятся не по порядку, прежде чем приступать к проверке, выполните следующие действия.


    1. Добавьте номера перед именами файлов.

    2. Запишите файлы в какой-либо каталог и скопируйте каталог на USB-устройство.

ПОРЯДОК ВЫПОЛНЕНИЯ


  1. ПРОВЕРЬТЕ USB-УСТРОЙСТВО ИЛИ "iPod"


    1. Отсоедините USB-устройство или "iPod" от переходника стереогнезда № 1 в сборе.

    2. Проверьте, имеются ли в USB-устройстве или устройстве "iPod" файлы, пригодные для воспроизведения.

      Tech Tips

      Сведения о файлах, пригодных для воспроизведения, см. в разделе "Описание системы".

      Нажмите здесь Click here

    3. Убедитесь, что USB-устройство имеет поддерживаемый формат, либо "iPod" имеет совместимую версию.

      Tech Tips

      Сведения о поддерживаемых форматах и версиях можно найти в разделе "Описание системы".

      Нажмите здесь Click here

      Результат
      Результат Перейти к
      Воспроизводимые файлы отсутствуют, либо не поддерживается формат или версия устройства. А
      Воспроизводимые файлы имеются, а формат или версия устройства поддерживается. B

    А
    B
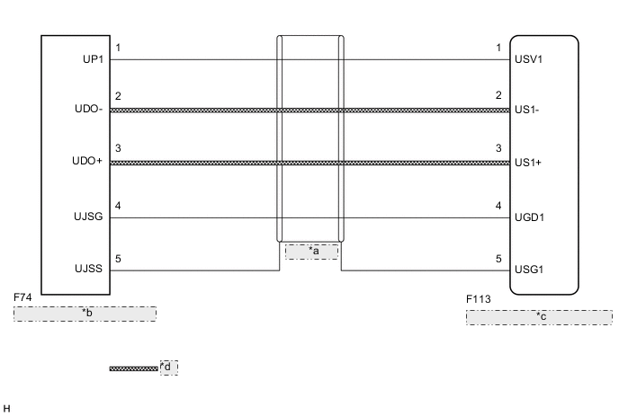
  2. ПРОВЕРЬТЕ ЖГУТ И РАЗЪЕМ (РАДИОПРИЕМНИК С ДИСПЛЕЕМ В СБОРЕ – ПЕРЕХОДНИК СТЕРЕОГНЕЗДА № 1 В СБОРЕ)


    1. Отсоедините разъем F113 радиоприемника с дисплеем в сборе.

    2. Отсоедините разъем F74 переходника стереогнезда № 1.

    3. A018JAHC14
      *a

      Вид спереди разъема со стороны жгута проводов:

      (к радиоприемнику с дисплеем в сборе)

      *b

      Вид спереди разъема со стороны жгута проводов:

      (к переходнику стереогнезда № 1 в сборе)

      Измерьте сопротивление в соответствии со значениями, приведенными в таблице ниже.

      Номинальное сопротивление
      Подключение диагностического прибора Условие Заданные условия
      F74-1 (UP1) - F113-1 (USV1) Всегда Менее 1 Ом
      F74-2 (UDO-) - F113-2 (US1-) Всегда Менее 1 Ом
      F74-3 (UDO+) - F113-3 (US1+) Всегда Менее 1 Ом
      F74-4 (UJSG) - F113-4 (UGD1) Всегда Менее 1 Ом
      F74-5 (UJSS) - F113-5 (USG1) Всегда Менее 1 Ом
      F74-1 (UP1) - масса Всегда 10 кОм или более
      F74-2 (UDO-) - масса Всегда 10 кОм или более
      F74-3 (UDO+) - масса Всегда 10 кОм или более
      F74-4 (UJSG) - масса Всегда 10 кОм или более
      F74-5 (UJSS) - масса Всегда 10 кОм или более
      Результат
      Перейти к
      OK
      NG

    NG
    OK
  3. ПРОВЕРЬТЕ РАДИОПРИЕМНИК С ДИСПЛЕЕМ В СБОРЕ (ПИТАНИЕ ПЕРЕХОДНИКА СТЕРЕОГНЕЗДА № 1 В СБОРЕ)


    1. Отсоедините разъем F74 переходника стереогнезда № 1.

    2. A018JEZC06
      *a

      Вид спереди разъема со стороны жгута проводов:

      (к переходнику стереогнезда № 1 в сборе)

      Измерьте напряжение в соответствии со значениями, приведенными в таблице.

      Номинальное напряжение
      Подключение диагностического прибора Условие Заданные условия
      F74-1 (UP1) - F74-4 (UJSG) Замок зажигания в положении ACC 5 В
      Результат
      Следующий шаг
      OK
      NG

    NG
    OK
  4. ОТФОРМАТИРУЙТЕ USB-УСТРОЙСТВО, ЛИБО ВОССТАНОВИТЕ И ПЕРЕПРОВЕРЬТЕ "iPod"


    1. Удалите все файлы с USB-устройства или устройства "iPod" и отформатируйте/восстановите его.

    2. Снова сохраните данные и проверьте, воспроизводятся ли записи с использованием автомобильной аппаратуры.

      Note

      Форматирование USB-устройства или восстановление устройства "iPod" приводит к удалению всей музыки с устройства. Перед выполнением этой операции убедитесь, что имеются резервные копии музыкальных записей.

      OK
      Неисправность пропала.
      Результат
      Следующий шаг
      OK
      NG

    OK
    NG
  5. ЗАМЕНИТЕ USB-УСТРОЙСТВО ИЛИ "iPod"


    1. Выключите зажигание.

      Tech Tips

      Если возникла данная неисправность, необходимо выключить зажигание, чтобы автомобиль получил возможность опознать новое устройство при подключении.

    2. Поверните замок зажигания в положение ACC.

    3. Подсоедините заведомо исправное USB-устройство или "iPod" к переходнику стереогнезда № 1 в сборе.

      Tech Tips


      • Если неисправность возникла при работе с USB-устройством, то для проверки следует использовать другое USB-устройство. Если неисправность возникла при работе с устройством "iPod", для проверки следует использовать другое устройство "iPod".

      • Сведения о поддерживаемых форматах и версиях можно найти в разделе "Описание системы".

        Нажмите здесь Click here

      Результат
      Следующий шаг
      ДАЛЕЕ

    ДАЛЕЕ
  6. ПРОВЕРЬТЕ USB-УСТРОЙСТВО ИЛИ "iPod"


    1. Проверьте, опознается ли USB-устройство или "iPod" радиоприемником с дисплеем в сборе и отображается ли на экране такая информация, как название дорожки, исполнитель и название альбома.

      OK
      USB-устройство или iPod опознается, и информация отображается на экране.
      Результат
      Следующий шаг
      OK
      NG

    OK
    NG