NAVIGATION SYSTEM(for Navigation Receiver Type) USB Audio System Recognition/Play Error

DESCRIPTION

When a USB device or "iPod" is connected to the USB jack of the No. 1 stereo jack adapter assembly, it must have playable files. The device must also communicate with and be recognized by the navigation receiver assembly. This diagnosis procedure is for when a device is not recognized, or files from the device cannot be played normally.

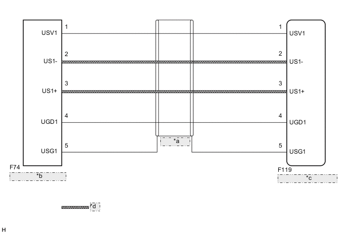
WIRING DIAGRAM

A002A12E21
*a (Shielded)
*b No. 1 Stereo Jack Adapter Assembly
*c Navigation Receiver Assembly
*d Data Signal (USB Communication Line)

CAUTION / NOTICE / HINT

Tech Tips


  • When a large amount of data is in a USB device, it may take a while to begin playback.

  • When using a USB device, files that are protected by copyright cannot be played.

  • When files are not played in the sorted order, perform the following procedure before inspection.


    1. Add numbers in front of the file names.

    2. Put the files in a folder and copy the folder data to the USB device.

PROCEDURE


  1. CHECK USB DEVICE OR "iPod"


    1. Disconnect the USB device or "iPod" from the No. 1 stereo jack adapter assembly.

    2. Check if playable files are present on the USB device or "iPod".

      Tech Tips

      Refer to System Description for playable files.

      Click here

    3. Check if the USB device is a compatible format or "iPod" is a compatible version.

      Tech Tips

      Refer to System Description for compatible formats and versions.

      Click here

      Result
      Result Proceed to
      No playable files exist, or incompatible device format or version. A
      Playable files exist, and compatible device format or version. B

    A
    B
  2. CHECK HARNESS AND CONNECTOR (NAVIGATION RECEIVER ASSEMBLY - NO. 1 STEREO JACK ADAPTER ASSEMBLY)


    1. Disconnect the F119 navigation receiver assembly connector.

    2. A01QVWOC22
      *a

      Front view of wire harness connector

      (to Navigation Receiver Assembly)

      *b

      Front view of wire harness connector

      (to No. 1 Stereo Jack Adapter Assembly)

      Disconnect the F74 No. 1 stereo jack adapter assembly connector.

    3. Measure the resistance according to the value(s) in the table below.

      Standard Resistance
      Tester Connection Condition Specified Condition
      F74-1 (USV1) - F119-1 (USV1) Always Below 1 Ω
      F74-2 (US1-) -F119-2 (US1-) Always Below 1 Ω
      F74-3 (US1+) -F119-3 (US1+) Always Below 1 Ω
      F74-4 (UGD1) -F119-4 (UGD1) Always Below 1 Ω
      F74-5 (USG1) -F119-5 (USG1) Always Below 1 Ω
      F74-1 (USV1) - Body ground Always 10 kΩ or higher
      F74-2 (US1-) - Body ground Always 10 kΩ or higher
      F74-3 (US1+) - Body ground Always 10 kΩ or higher
      F74-4 (UGD1) - Body ground Always 10 kΩ or higher
      F74-5 (USG1) - Body ground Always 10 kΩ or higher
      Result
      Proceed to
      OK
      NG

    NG
    OK
  3. INSPECT NAVIGATION RECEIVER ASSEMBLY (NO. 1 STEREO JACK ADAPTER ASSEMBLY POWER SOURCE)


    1. Disconnect the F74 No. 1 stereo jack adapter assembly connector.

    2. A01QVG4C05
      *a

      Front view of wire harness connector

      (to No. 1 Stereo Jack Adapter Assembly)

      Measure the voltage according to the value(s) in the table below.

      Standard Voltage
      Tester Connection Condition Specified Condition
      F74-1 (USV1) - F74-4 (UGD1) Engine switch on (ACC) 5 V
      Result
      Proceed to
      OK
      NG

    NG
    OK
  4. FORMAT USB DEVICE OR RESTORE "iPod" AND RECHECK


    1. Delete all files in the USB device or "iPod" and format/restore it.

    2. Save the data again and check if it can be played on the in-vehicle device.

      Note

      Formatting a USB device or restoring an "iPod" erases all music on the device. Ensure that a backup of the music data is available before performing this operation.

      OK
      Malfunction disappears.
      Result
      Proceed to
      OK
      NG

    OK
    NG
  5. REPLACE USB DEVICE OR "iPod"


    1. Turn the engine switch off.

      Tech Tips

      When this malfunction occurs, it is necessary to turn the engine switch off to make it possible for the vehicle to recognize a new device when it is connected.

    2. Turn the engine switch on (ACC).

    3. Connect a known good USB device or "iPod" to the No. 1 stereo jack adapter assembly.

      Tech Tips


      • If the malfunction occurred when a USB device was in use, use another USB device for the inspection. If the malfunction occurred when an "iPod" was in use, use another "iPod" for the inspection.

      • Refer to System Description for compatible formats and versions.

        Click here

      Result
      Proceed to
      NEXT

    NEXT
  6. CHECK USB DEVICE OR "iPod"


    1. Check if a USB device or "iPod" is recognized by the navigation receiver assembly, and if information such as track, artist and album names is displayed on the screen.

      OK
      USB device or "iPod" is recognized properly and the information is displayed on the screen.
      Result
      Proceed to
      OK
      NG

    OK
    NG