LIGHTING SYSTEM Headlight Dimmer Switch Circuit

DESCRIPTION

The main body ECU (multiplex network body ECU) receives the following switch information:


WIRING DIAGRAM


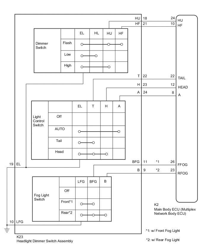
  1. for Light Control Switch LH Side Type

    A01CZJWE05
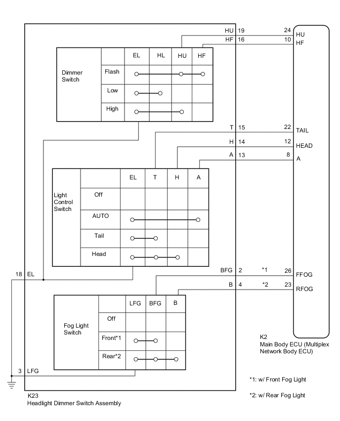
  2. for Light Control Switch RH Side Type

    A01CZJWE06

CAUTION / NOTICE / HINT

Note

Before replacing the main body ECU (multiplex network body ECU), refer to Service Bulletin.

PROCEDURE


  1. READ VALUE USING GTS


    1. Connect the GTS to the DLC3.

    2. Turn the power switch on (IG).

    3. Turn the GTS on.

    4. Enter the following menus: Body Electrical / Main Body / Data List.

    5. Read the display on the GTS.


      Body Electrical > Main Body > Data List
      Tester Display Measurement Item Range Normal Condition Diagnostic Note
      Dimmer SW Dimmer switch high position signal ON or OFF

      ON: Dimmer switch in high or high flash position

      OFF: Dimmer switch in low position

      -
      Passing Light SW Dimmer switch high flash position (pass) signal ON or OFF

      ON: Dimmer switch in high flash position

      OFF: Dimmer switch not in high flash position

      -
      Rear Fog Light SW Fog light switch rear position signal ON or OFF

      ON: Fog light switch in rear position

      OFF: Fog light switch off

      *1
      Front Fog Light SW Fog light switch front position signal ON or OFF

      ON: Fog light switch in front position

      OFF: Fog light switch off

      *2
      Auto Light SW Light control switch AUTO position signal ON or OFF

      ON: Light control switch in AUTO position

      OFF: Light control switch not in AUTO position

      -
      Head Light SW (Head) Light control switch head position signal ON or OFF

      ON: Light control switch in head position

      OFF: Light control switch not in head position

      -
      Head Light SW (Tail) Light control switch tail position signal ON or OFF

      ON: Light control switch in tail or head position

      OFF: Light control switch in neither tail nor head position

      -

      • *1: w/ Rear Fog Light

      • *2: w/ Front Fog Light


      Body Electrical > Main Body > Data List
      Tester Display
      Dimmer SW
      Passing Light SW
      Rear Fog Light SW
      Front Fog Light SW
      Auto Light SW
      Head Light SW (Head)
      Head Light SW (Tail)
      OK
      Normal conditions listed above are displayed.
      Result
      Proceed to
      OK
      NG

    OK
    NG
  2. INSPECT HEADLIGHT DIMMER SWITCH ASSEMBLY

    Tech Tips

    Inspect the items that did not change as a result of monitoring the Data List.


    1. Remove the headlight dimmer switch assembly.

      Click here

    2. Measure the resistance according to the value(s) in the table below.


      1. A0021RZC07
        *a

        Component without harness connected

        (Headlight Dimmer Switch Assembly)

        for Light Control Switch LH Side Type:

        Standard Resistance
        Light Control Switch
        Tester Connection Condition Specified Condition
        22 (T) - 19 (EL) Light control switch off 10 kΩ or higher
        23 (H) - 19 (EL) Light control switch off 10 kΩ or higher
        24 (A) - 19 (EL) Light control switch off 10 kΩ or higher
        22 (T) - 19 (EL) Light control switch in tail position Below 1 Ω
        22 (T) - 19 (EL) Light control switch in head position Below 1 Ω
        23 (H) - 19 (EL) Light control switch in head position Below 1 Ω
        24 (A) - 19 (EL) Light control switch in AUTO position Below 1 Ω
        Dimmer Switch
        Tester Connection Condition Specified Condition
        18 (HU) - 19 (EL) Dimmer switch in high position Below 1 Ω
        18 (HU) - 19 (EL) Dimmer switch in high flash position Below 1 Ω
        21 (HF) - 19 (EL) Dimmer switch in high flash position Below 1 Ω
        Fog Light Switch
        Tester Connection Condition Specified Condition
        11 (BFG)*1 - 10 (LFG) Fog light switch off 10 kΩ or higher
        11 (BFG)*1 - 10 (LFG) Fog light switch in front position Below 1 Ω
        9 (B)*2 - 10 (LFG) Fog light switch off 10 kΩ or higher
        9 (B)*2 - 10 (LFG) Fog light switch in rear position Below 1 Ω

        • *1: w/ Front Fog Light

        • *2: w/ Rear Fog Light

      2. A01D057C06
        *a

        Component without harness connected

        (Headlight Dimmer Switch Assembly)

        for Light Control Switch RH Side Type:

        Standard Resistance
        Light Control Switch
        Tester Connection Condition Specified Condition
        15 (T) - 18 (EL) Light control switch off 10 kΩ or higher
        14 (H) - 18 (EL) Light control switch off 10 kΩ or higher
        13 (A) - 18 (EL) Light control switch off 10 kΩ or higher
        15 (T) - 18 (EL) Light control switch in tail position Below 1 Ω
        15 (T) - 18 (EL) Light control switch in head position Below 1 Ω
        14 (H) - 18 (EL) Light control switch in head position Below 1 Ω
        13 (A) - 18 (EL) Light control switch in AUTO position Below 1 Ω
        Dimmer Switch
        Tester Connection Condition Specified Condition
        19 (HU) - 18 (EL) Dimmer switch in high position Below 1 Ω
        19 (HU) - 18 (EL) Dimmer switch in high flash position Below 1 Ω
        16 (HF) - 18 (EL) Dimmer switch in high flash position Below 1 Ω
        Fog Light Switch
        Tester Connection Condition Specified Condition
        2 (BFG)*1 - 3 (LFG) Fog light switch off 10 kΩ or higher
        2 (BFG)*1 - 3 (LFG) Fog light switch in front position Below 1 Ω
        4 (B)*2 - 3 (LFG) Fog light switch off 10 kΩ or higher
        4 (B)*2 - 3 (LFG) Fog light switch in rear position Below 1 Ω

        • *1: w/ Front Fog Light

        • *2: w/ Rear Fog Light

      Result
      Proceed to
      OK
      NG

    NG
    OK
  3. CHECK HARNESS AND CONNECTOR (HEADLIGHT DIMMER SWITCH ASSEMBLY - MAIN BODY ECU (MULTIPLEX NETWORK BODY ECU))


    1. Disconnect the K2 main body ECU (multiplex network body ECU) connector.

    2. Measure the resistance according to the value(s) in the table below.


      1. for Light Control Switch LH Side Type:

        Standard Resistance
        Tester Connection Condition Specified Condition
        K23-11 (BFG)*1 - K2-26 (FFOG)*1 Always Below 1 Ω
        K23-9 (B)*2 - K2-23 (RFOG)*2 Always Below 1 Ω
        K23-18 (HU) - K2-24 (HU) Always Below 1 Ω
        K23-21 (HF) - K2-10 (HF) Always Below 1 Ω
        K23-22 (T) - K2-22 (TAIL) Always Below 1 Ω
        K23-23 (H) - K2-12 (HEAD) Always Below 1 Ω
        K23-24 (A) - K2-8 (A) Always Below 1 Ω
        K23-11 (BFG)*1 - Body ground Always 10 kΩ or higher
        K23-9 (B)*2 - Body ground Always 10 kΩ or higher
        K23-18 (HU) - Body ground Always 10 kΩ or higher
        K23-21 (HF) - Body ground Always 10 kΩ or higher
        K23-22 (T) - Body ground Always 10 kΩ or higher
        K23-23 (H) - Body ground Always 10 kΩ or higher
        K23-24 (A) - Body ground Always 10 kΩ or higher
        K23-19 (EL) - Body ground Always Below 1 Ω
        K23-10 (LFG)*3 - Body ground Always Below 1 Ω

        • *1: w/ Front Fog Light

        • *2: w/ Rear Fog Light

        • *3: w/ Front Fog Light or w/ Rear Fog Light

      2. for Light Control Switch RH Side Type:

        Standard Resistance
        Tester Connection Condition Specified Condition
        K23-2 (BFG)*1 - K2-26 (FFOG)*1 Always Below 1 Ω
        K23-4 (B)*2 - K2-23 (RFOG)*2 Always Below 1 Ω
        K23-19 (HU) - K2-24 (HU) Always Below 1 Ω
        K23-16 (HF) - K2-10 (HF) Always Below 1 Ω
        K23-15 (T) - K2-22 (TAIL) Always Below 1 Ω
        K23-14 (H) - K2-12 (HEAD) Always Below 1 Ω
        K23-13 (A) - K2-8 (A) Always Below 1 Ω
        K23-2 (BFG)*1 - Body ground Always 10 kΩ or higher
        K23-4 (B)*2 - Body ground Always 10 kΩ or higher
        K23-19 (HU) - Body ground Always 10 kΩ or higher
        K23-16 (HF) - Body ground Always 10 kΩ or higher
        K23-15 (T) - Body ground Always 10 kΩ or higher
        K23-14 (H) - Body ground Always 10 kΩ or higher
        K23-13 (A) - Body ground Always 10 kΩ or higher
        K23-18 (EL) - Body ground Always Below 1 Ω
        K23-3 (LFG)*3 - Body ground Always Below 1 Ω

        • *1: w/ Front Fog Light

        • *2: w/ Rear Fog Light

        • *3: w/ Front Fog Light or w/ Rear Fog Light

      Result
      Proceed to
      OK
      NG

    OK
    NG