ELECTRONICALLY CONTROLLED BRAKE SYSTEM TC and CG Terminal Circuit

DESCRIPTION

Connecting terminals TC and CG of the DLC3 causes the ECU to display DTCs by blinking the ABS warning, brake warning / yellow (minor malfunction) and slip indicator lights.

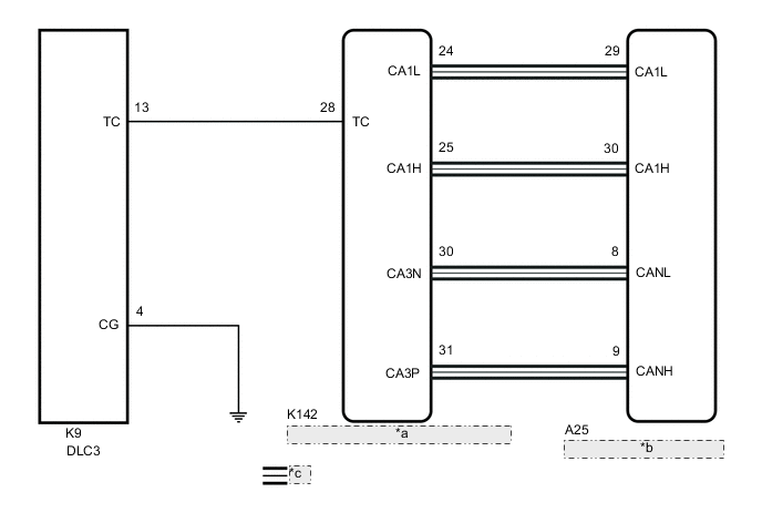
WIRING DIAGRAM

B003Y5LE05
*a Hybrid Vehicle Control ECU Assembly
*b Skid Control ECU Assembly
*c CAN Communication Line

Tech Tips

When the warning lights blink without terminals TC and CG connected, a ground short in the wiring of terminal TC of the DLC3 or an internal ground short in one or more ECUs is suspected.

CAUTION / NOTICE / HINT

Note

When replacing the skid control ECU assembly, perform initialization and calibration of the linear solenoid valve.

Click here

PROCEDURE


  1. CHECK CAN COMMUNICATION SYSTEM


    1. Check if CAN communication system DTCs are output.

      Click here

      Result
      Result Proceed to
      DTCs are not output. A
      DTCs are output. B

    B
    A
  2. CHECK HARNESS AND CONNECTOR (TC of DLC3 - HYBRID VEHICLE CONTROL ECU ASSEMBLY)


    1. Disconnect the K142 hybrid vehicle control ECU assembly connector.

    2. Measure the resistance according to the value(s) in the table below.

      Standard Resistance
      Tester Connection Condition Specified Condition
      K9-13 (TC) - K142-28 (TC) Always Below 1 Ω
      K9-13 (TC) or K142-28 (TC) - Body ground Always 10 kΩ or higher
      Result
      Proceed to
      OK
      NG

    NG
    OK
  3. CHECK HARNESS AND CONNECTOR (CG of DLC3 - BODY GROUND)


    1. B003YKPC63
      *a Front view of DLC3

      Measure the resistance according to the value(s) in the table below.

      Standard Resistance
      Tester Connection Condition Specified Condition
      K9-4 (CG) - Body ground Always Below 1 Ω

      Tech Tips

      If troubleshooting has been carried out according to Problem Symptoms Table, refer back to the table and proceed to the next step before replacing the parts.

      Click here

      Result
      Proceed to
      OK
      NG

    OK
    NG