ELECTRONICALLY CONTROLLED BRAKE SYSTEM ABS Warning Light Remains ON

DESCRIPTION

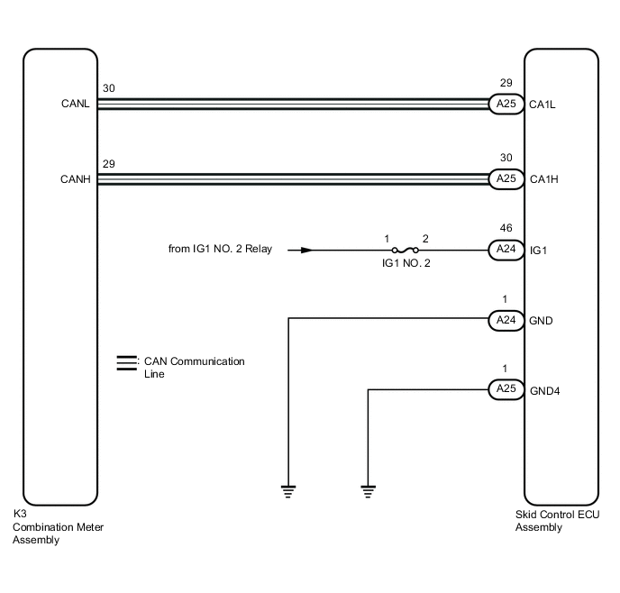
The skid control ECU assembly is connected to the combination meter assembly via CAN communication.

If any of the following is detected, the ABS warning light remains on:


Tech Tips

In some cases, the GTS cannot be used when the skid control ECU assembly is malfunctioning.

WIRING DIAGRAM

B003YJAE03

CAUTION / NOTICE / HINT

Note


  • When replacing the skid control ECU assembly, perform initialization and calibration of the linear solenoid valve.

    Click here

  • Inspect the fuses for circuits related to this system before performing the following procedure.

PROCEDURE


  1. CHECK CAN COMMUNICATION SYSTEM


    1. Check if CAN communication system DTCs are output.

      Click here

      Result
      Result Proceed to
      DTCs are not output. A
      DTCs are output. B

    B
    A
  2. CHECK IF SKID CONTROL ECU ASSEMBLY CONNECTOR IS SECURELY CONNECTED


    1. Check if the skid control ECU assembly connector is securely connected.

      OK
      The connector is securely connected.
      Result
      Proceed to
      OK
      NG

    NG
    OK
  3. CHECK AUXILIARY BATTERY


    1. Check the auxiliary battery voltage.

      Standard Voltage
      Tester Connection Condition Specified Condition
      Auxiliary battery Power switch on (IG) 11 to 14 V
      Auxiliary battery Power switch on (READY) 11 to 15.5 V
      Result
      Proceed to
      OK
      NG

    NG
    OK
  4. CHECK HARNESS AND CONNECTOR (IG1 TERMINAL)


    1. B003Y2VC20
      *a

      Front view of wire harness connector

      (to Skid Control ECU Assembly)

      Disconnect the A24 skid control ECU assembly connector.

    2. Turn the power switch on (IG).

    3. Measure the voltage according to the value(s) in the table below.

      Standard Voltage
      Tester Connection Condition Specified Condition
      A24-46 (IG1) - Body ground Power switch on (IG) 11 to 14 V
      Result
      Proceed to
      OK
      NG

    NG
    OK
  5. CHECK HARNESS AND CONNECTOR (GND TERMINAL)


    1. B003YREC20
      *a

      Front view of wire harness connector

      (to Skid Control ECU Assembly)

      Turn the power switch off.

    2. Disconnect the A25 skid control ECU assembly connector.

    3. Measure the resistance according to the value(s) in the table below.

      Standard Resistance
      Tester Connection Condition Specified Condition
      A24-1 (GND) - Body ground Always Below 1 Ω
      A25-1 (GND4) - Body ground Always Below 1 Ω
      Result
      Proceed to
      OK
      NG

    NG
    OK
  6. READ VALUE USING GTS (ABS WARNING LIGHT)


    1. Reconnect the A24 and A25 skid control ECU assembly connectors.

    2. Connect the GTS to the DLC3.

    3. Turn the power switch on (IG).

    4. Select the Data List on the GTS.

      Click here


      Chassis > ABS/VSC/TRC > Data List
      Tester Display Measurement Item Range Normal Condition Diagnostic Note
      ABS Warning Light ABS warning light ON or OFF

      ON: Warning light on

      OFF: Warning light off

      -

      Chassis > ABS/VSC/TRC > Data List
      Tester Display
      ABS Warning Light
    5. Check the GTS display condition of the ABS warning light.

      Result
      Result Proceed to
      Display of the Data List remains OFF. A
      Display of the Data List remains ON. B

      Tech Tips

      If troubleshooting has been carried out according to Problem Symptoms Table, refer back to the table and proceed to the next step before replacing the parts.

      Click here


    A
    B