ПЕРЕДНИЙ ПРИВОДНОЙ ВАЛ В СБОРЕ (для моделей с приводом на одну ось) ПОВТОРНАЯ СБОРКА

ПРЕДОСТЕРЕЖЕНИЕ / ПРИМЕЧАНИЕ / УКАЗАНИЕ

Note


  • Устанавливайте между тисками и деталью алюминиевые губки.

  • Не затягивайте тиски слишком сильно.

ПОРЯДОК ВЫПОЛНЕНИЯ


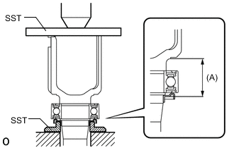
  1. УСТАНОВИТЕ ПОДШИПНИК ПЕРЕДНЕГО ПРИВОДНОГО ВАЛА


    1. Для моделей без корпуса подшипника приводного вала:


      1. A01CWXDN01

        С помощью SST и пресса установите новый подшипник переднего приводного вала на внутренний шарнир правого переднего приводного вала.

        SST
        09527-10011
        09710-30012   ( 09710-04081 )

        Note

        Убедитесь, что подшипник установлен полностью.

      2. A01CY7K

        С помощью съемника стопорных колец наденьте новое пружинное стопорное кольцо.

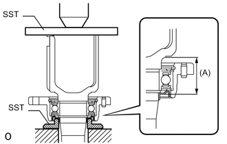
  2. УСТАНОВИТЕ КОРПУС ПОДШИПНИКА ПРИВОДНОГО ВАЛА В СБОРЕ


    1. Для моделей с корпусом подшипника приводного вала:


      1. A01CWSSN04

        С помощью SST и пресса установите новый корпус подшипника переднего приводного вала в сборе на внутренний шарнир правого переднего приводного вала.

        SST
        09527-10011
        09710-30012   ( 09710-04081 )

        Note

        Убедитесь, что подшипник установлен полностью.

      2. A01CY5Z

        С помощью съемника стопорных колец наденьте новое пружинное стопорное кольцо.

  3. УСТАНОВИТЕ ПЫЛЬНИК ПЕРЕДНЕГО ПРИВОДНОГО ВАЛА


    1. Для моделей без корпуса подшипника приводного вала:


      1. A01CX19N01

        С помощью SST и пресса установите новый пыльник приводного вала.

        SST
        09527-10011
        09726-40010
        Номинальное расстояние (A)
        41,6 - 42,6 мм (1,638 - 1,677 дюйма)

        Note

        Будьте осторожны, чтобы не повредить пыльник переднего приводного вала.

    2. Для моделей с корпусом подшипника приводного вала:


      1. A01CZ11N01

        С помощью SST и пресса установите новый пыльник приводного вала.

        SST
        09527-10011
        09726-40010
        Номинальное расстояние (A)
        41,6 - 42,6 мм (1,638 - 1,677 дюйма)

        Note

        Будьте осторожны, чтобы не повредить пыльник переднего приводного вала.

  4. УСТАНОВИТЕ ЛЕВЫЙ ПЫЛЬНИК ПЕРЕДНЕГО ПРИВОДНОГО ВАЛА


    1. A01CXZEN01

      С помощью SST и пресса установите новый левый пыльник переднего приводного вала.

      SST
      09527-10011

      Note


      • Пыльник левого переднего вала следует устанавливать полностью.

      • Будьте осторожны, чтобы не повредить пыльник левого переднего приводного вала.

  5. УСТАНОВИТЕ ПРАВЫЙ ПЫЛЬНИК ПЕРЕДНЕГО ПРИВОДНОГО ВАЛА


    1. A01CYW7N05

      С помощью SST и пресса установите новый пыльник правого переднего приводного вала на внутренний шарнир правого переднего приводного вала так, чтобы расстояние от конца внутреннего шарнира правого переднего приводного вала в сборе до пыльника правого переднего приводного вала удовлетворяло требованиям, как показано на рисунке.

      SST
      09527-10011
      Номинальное расстояние (A)
      Параметр / Устройство Длина
      Для моделей с 1AD-FTV (для моделей с механической трансмиссией) 110,0 - 111,0 мм (4,331 - 4,370 дюйма)
      Для моделей с 2AR-FE (для моделей с автоматической трансмиссией)
      Для моделей с 2AR-FE (для моделей с механической трансмиссией) 91,0-92,0 мм (3,583-3,622 дюйма)
      Для моделей с 3ZR-FE (с механической трансмиссией)
      Для моделей с 3ZR-FE (с бесступенчатой трансмиссией)

      Note

      Будьте осторожны, чтобы не повредить пыльник правого переднего приводного вала.

  6. УСТАНОВИТЕ ЧЕХОЛ НАРУЖНОГО ШАРНИРА ПЕРЕДНЕЙ ПОЛУОСИ


    1. A01CW1IC05
      *a Защитная клейкая лента

      Перед установкой чехла наружного шарнира передней полуоси оберните шлицы вала наружного шарнира переднего приводного вала защитной клейкой лентой для предотвращения повреждения чехла наружного шарнира передней полуоси.

    2. Установите новые детали на вал наружного шарнира переднего приводного вала в сборе в следующем порядке.


      1. Хомут чехла наружного шарнира передней полуоси № 2

      2. Чехол наружного шарнира передней полуоси

      3. Хомут чехла наружного шарнира передней полуоси

    3. Установите чехол наружного шарнира передней полуоси таким образом, чтобы он находился между хомутом чехла наружного шарнира передней полуоси № 2 и наружным шарниром переднего приводного вала.

    4. Временно закрепите зажим чехла наружного шарнира передней полуоси на чехле наружного шарнира передней полуоси.

    5. Наполните вал наружного шарнира переднего приводного вала в сборе и чехол наружного шарнира передней полуоси смазкой из комплекта чехла.

      Номинальное количество смазки
      Параметр / Устройство Количество смазки
      Для моделей с 1AD-FTV (для моделей с механической трансмиссией) 205 - 215 г (7,3 - 7,5 унции)
      Для моделей с 2AR-FE (для моделей с автоматической трансмиссией)
      Для моделей с 2AR-FE (для моделей с механической трансмиссией)
      Для моделей с 3ZR-FE (с механической трансмиссией)
      Для моделей с 3ZR-FE (с бесступенчатой трансмиссией) 171 - 181 г (6,1 - 6,3 унции)
  7. УСТАНОВИТЕ ХОМУТ ЧЕХЛА НАРУЖНОГО ШАРНИРА ЛЕВОЙ ПЕРЕДНЕЙ ПОЛУОСИ № 2

    A01CXUD

    CAUTION:

    Чтобы не травмировать руки, наденьте защитные перчатки.


    1. Установите хомут чехла левого наружного шарнира передней полуоси № 2 на чехол наружного шарнира передней полуоси и временно согните рычаг.

      Note


      • Надлежащим образом поместите рычаг в направляющей канавке и установите хомут чехла наружного шарнира левой передней полуоси № 2 как можно глубже внутрь автомобиля.

      • Перед тем, как сгибать рычаг, проверьте хомут и рычаг на наличие деформаций.

    2. A01CW5G

      Перенесите свой вес на руку и перекатите вал наружного шарнира левого переднего приводного вала в сборе вперед, одновременно прижимая его к поверхности, до щелчка.

      Note


      • Действуйте осторожно, чтобы не повредить отражатель.

      • Следите за тем, чтобы вал наружного шарнира левого переднего приводного вала находился в непосредственном контакте с поверхностью.

    3. A01CXBP

      С помощью молотка с пластмассовым покрытием подбейте стяжку таким образом, чтобы закрепить рычаг на месте, проследив за тем, чтобы конец рычага был совмещен со стяжкой.

      Note

      Соблюдайте осторожность, чтобы не повредить чехол наружного шарнира передней полуоси.

  8. УСТАНОВИТЕ ХОМУТ ЧЕХЛА НАРУЖНОГО ШАРНИРА ПРАВОЙ ПЕРЕДНЕЙ ПОЛУОСИ № 2

    Tech Tips

    Порядок выполнения работ такой же, как для левой стороны.

  9. УСТАНОВИТЕ ХОМУТ ЧЕХЛА НАРУЖНОГО ШАРНИРА ЛЕВОЙ ПЕРЕДНЕЙ ПОЛУОСИ

    A01CXJ4

    CAUTION:

    Чтобы не травмировать руки, наденьте защитные перчатки.


    1. Установите хомут чехла наружного шарнира левой передней полуоси на чехол наружного шарнира передней полуоси и временно согните рычаг.

      Note


      • Расположите рычаг в соответствующей направляющей канавке.

      • Перед тем, как сгибать рычаг, проверьте хомут и рычаг на наличие деформаций.

    2. A01CXDM

      С помощью плоскогубцев для насоса системы охлаждения зажмите зажим чехла наружного шарнира левой передней полуоси, чтобы временно зафиксировать его.

    3. A01CXK8

      С помощью молотка с пластмассовым покрытием подбейте стяжку таким образом, чтобы закрепить рычаг на месте, проследив за тем, чтобы конец рычага был совмещен со стяжкой.

      Note

      Соблюдайте осторожность, чтобы не повредить чехол наружного шарнира передней полуоси.

  10. УСТАНОВИТЕ ЗАЖИМ ЧЕХЛА НАРУЖНОГО ШАРНИРА ПЕРЕДНЕЙ ПРАВОЙ ПОЛУОСИ

    Tech Tips

    Порядок выполнения работ такой же, как для левой стороны.

  11. УСТАНОВИТЕ ЛЕВЫЙ ДЕМПФЕР ПЕРЕДНЕГО ПРИВОДНОГО ВАЛА (для моделей с демпфером приводного вала)


    1. A01CWL5C03
      *1 Зажим демпфера левого переднего приводного вала
      *2 Демпфер левого переднего приводного вала

      Установите новый хомут демпфера левого переднего приводного вала и демпфер левого переднего приводного вала на вал наружного шарнира левого переднего приводного вала в сборе.

      Tech Tips

      Убедитесь, что хомут демпфера левого переднего приводного вала располагается со стороны наружного шарнира.

    2. Отрегулируйте положение левого демпфера приводного вала так, чтобы расстояние, указанное на рисунке, попало в номинальный диапазон.

      Номинальное расстояние (A)
      Параметр / Устройство Длина
      Для моделей с 1AD-FTV (для моделей с механической трансмиссией) 158,0 - 162,0 мм (6,221 - 6,377 дюйма)
      Для моделей с 2AR-FE (для моделей с автоматической трансмиссией)
      Для моделей с 2AR-FE (для моделей с механической трансмиссией) -
      Для моделей с 3ZR-FE (с механической трансмиссией) -
      Для моделей с 3ZR-FE (с бесступенчатой трансмиссией) 161,0 - 165,0 мм (6,339 - 6,496 дюйма)
  12. УСТАНОВИТЕ ПРАВЫЙ ДЕМПФЕР ПЕРЕДНЕГО ПРИВОДНОГО ВАЛА (для моделей с демпфером приводного вала)


    1. A01CWL5C03
      *1 Зажим демпфера правого переднего приводного вала
      *2 Демпфер правого переднего приводного вала

      Установите новый хомут демпфера правого переднего приводного вала и демпфер правого переднего приводного вала на вал наружного шарнира правого переднего приводного вала.

      Tech Tips

      Убедитесь, что хомут демпфера правого переднего приводного вала располагается со стороны наружного шарнира.

    2. Отрегулируйте положение правого демпфера приводного вала так, чтобы расстояние, указанное на рисунке, попало в номинальный диапазон.

      Номинальное расстояние (A)
      Параметр / Устройство Длина
      Для моделей с 1AD-FTV (для моделей с механической трансмиссией) -
      Для моделей с 2AR-FE (для моделей с автоматической трансмиссией) 161,0 - 165,0 мм (6,339 - 6,496 дюйма)
      Для моделей с 2AR-FE (для моделей с механической трансмиссией) -
      Для моделей с 3ZR-FE (с механической трансмиссией) -
      Для моделей с 3ZR-FE (с бесступенчатой трансмиссией) -
  13. УСТАНОВИТЕ ЗАЖИМ ДЕМПФЕРА ЛЕВОГО ПЕРЕДНЕГО ПРИВОДНОГО ВАЛА (для моделей с демпфером приводного вала)


    1. A01CWI6C01
      *A Для быстросъемного хомута
      *B Для хомута зубчатого типа

      Установите хомут демпфера левого переднего приводного вала.

      Note

      Проследите за тем, чтобы хомут демпфера левого переднего приводного вала был установлен в правильном положении.


      1. Для быстросъемного хомута:

        С помощью отвертки установите хомут демпфера левого переднего приводного вала, как показано на рисунке.

      2. Для хомута зубчатого типа:

        С помощью круглогубцев установите хомут демпфера левого переднего приводного вала, как показано на рисунке.

  14. УСТАНОВИТЕ ЗАЖИМ ДЕМПФЕРА ПРАВОГО ПЕРЕДНЕГО ПРИВОДНОГО ВАЛА (для моделей с демпфером приводного вала)

    Tech Tips

    Порядок выполнения работ такой же, как для левой стороны.

  15. УСТАНОВИТЕ ВНУТРЕННИЙ ШАРНИР ЛЕВОГО ПЕРЕДНЕГО ПРИВОДНОГО ВАЛА В СБОРЕ


    1. Установите новые детали на наружный шарнир левого переднего приводного вала в сборе в следующем порядке.


      1. Хомут чехла внутреннего шарнира левой передней полуоси

      2. Чехол внутреннего шарнира передней полуоси

      3. Хомут чехла внутреннего шарнира левой передней полуоси № 2

    2. Удалите защитную клейкую ленту с вала наружного шарнира левого переднего приводного вала в сборе.

    3. A01CXM1C02
      *a Метка

      Совместив метки, установите осевой шлиц триподного соединения таким образом, чтобы фаска была направлена к валу наружного шарнира левого переднего приводного вала в сборе.

    4. С помощью латунного стержня и молотка вбейте триподное соединение на вал наружного шарнира левого переднего приводного вала в сборе.

      Note


      • Не ударяйте по роликам.

      • При установке соблюдайте направление сошки.

    5. A01CW9O

      С помощью съемника стопорных колец наденьте новое пружинное стопорное кольцо.

    6. Заполните внутренний шарнир левого переднего приводного вала и чехол внутреннего шарнира передней полуоси консистентной смазкой из комплекта чехла.

      Номинальное количество смазки
      175 - 185 г (6,2 - 6,5 унции)
    7. A01CY2PC05
      *a Метка

      Совместив метки, установите внутренний шарнир левого переднего приводного вала в сборе на вал наружного шарнира левого переднего приводного вала в сборе.

  16. УСТАНОВИТЕ ВНУТРЕННИЙ ШАРНИР ПРАВОГО ПЕРЕДНЕГО ПРИВОДНОГО ВАЛА В СБОРЕ

    Tech Tips

    Порядок выполнения работ такой же, как для левой стороны.

  17. УСТАНОВИТЕ ЧЕХОЛ ВНУТРЕННЕГО ШАРНИРА ПЕРЕДНЕЙ ПОЛУОСИ


    1. Установите чехол внутреннего шарнира передней полуоси на внутренний шарнир переднего приводного вала в сборе.

    2. A01CW54C01
      *A Для левой стороны
      *B Для правой стороны

      Убедитесь, что при номинальной длине переднего приводного вала ведущего колеса 2 чехла шарниров не растягиваются и не стягиваются.

      Расстояние (A)
      Параметр / Устройство Длина
      Для моделей с 1AD-FTV (для моделей с механической трансмиссией) Левая сторона 553,6 мм (1,82 фута)
      Правая сторона 932,4 мм (3,06 фута)
      Для моделей с 2AR-FE (для моделей с автоматической трансмиссией) Левая сторона 577,6 мм (1,89 фута)
      Правая сторона 914,4 мм (3,00 фута)
      Для моделей с 2AR-FE (для моделей с механической трансмиссией) Левая сторона 583,6 мм (1,91 фута)
      Правая сторона 906,4 мм (2,97 фута)
      Для моделей с 3ZR-FE (с механической трансмиссией) Левая сторона 594,6 мм (1,95 фута)
      Правая сторона 893,4 мм (2,93 фута)
      Для моделей с 3ZR-FE (с бесступенчатой трансмиссией) Левая сторона 591,2 мм (1,94 фута)
      Правая сторона 890,0 мм (2,92 фута)

      Note

      Во время проверки удерживайте приводной вал в сборе в горизонтальном положении.

      Если чехлы имеют растяжение или сжатие, устраните его.

  18. УСТАНОВИТЕ ХОМУТ ЧЕХЛА ВНУТРЕННЕГО ШАРНИРА ЛЕВОЙ ПЕРЕДНЕЙ ПОЛУОСИ

    A01CYCEC01
    *A Для быстросъемного хомута
    *B Для хомута зубчатого типа

    1. Для быстросъемного хомута:

      С помощью отвертки установите хомут чехла внутреннего шарнира левой передней полуоси, как показано на рисунке.

      Note

      Соблюдайте осторожность, чтобы не повредить колпачок.

    2. Для хомута зубчатого типа:

      С помощью круглогубцев установите хомут чехла внутреннего шарнира левой передней полуоси, как показано на рисунке.

      Note

      Соблюдайте осторожность, чтобы не повредить колпачок.

  19. УСТАНОВИТЕ ХОМУТ ЧЕХЛА ВНУТРЕННЕГО ШАРНИРА ПРАВОЙ ПЕРЕДНЕЙ ПОЛУОСИ

    Tech Tips

    Порядок выполнения работ такой же, как для левой стороны.

  20. УСТАНОВИТЕ ХОМУТ ЧЕХЛА ВНУТРЕННЕГО ШАРНИРА ЛЕВОЙ ПЕРЕДНЕЙ ПОЛУОСИ № 2

    Tech Tips

    Выполните те же действия, что и для хомута чехла внутреннего шарнира левой передней полуоси.

  21. УСТАНОВИТЕ ХОМУТ ЧЕХЛА ВНУТРЕННЕГО ШАРНИРА ПРАВОЙ ПЕРЕДНЕЙ ПОЛУОСИ № 2

    Tech Tips

    Порядок выполнения работ такой же, как для левой стороны.

  22. ПРОВЕРЬТЕ ПЕРЕДНИЙ ПРИВОДНОЙ ВАЛ

    Нажмите здесь Click here