СИСТЕМА SFI Выходная цепь VC

ОПИСАНИЕ

Для управления микропроцессором блок ECM постоянно формирует напряжение питания 5 В из напряжения, подаваемого с аккумуляторной батареи на контакт +B (BATT). ECM также подает это напряжение питания к датчикам через выходную цепь VC.

B0042HZE18

При коротком замыкании цепи VC микропроцессор блока ECM и датчика, питание к которым подается по цепи VC, не работают вследствие отсутствия питания в цепи VC. При выполнении данных условий система не запускается и контрольная лампа MIL не включается даже в случае неисправности системы.

Tech Tips

При нормальных условиях при установке замка зажигания в состояние ON (ВКЛ) включается лампа MIL. При запуске двигателя контрольная лампа MIL выключается.

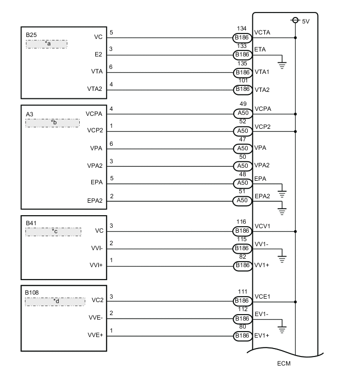
СХЕМА ЭЛЕКТРИЧЕСКИХ СОЕДИНЕНИЙ

B0042H2E02
*a Корпус дроссельной заслонки в сборе
*b Датчик положения педали акселератора в сборе
*c Датчик положения распредвала впускных клапанов
*d Датчик положения распредвала выпускных клапанов
B0041VKE02

ПОРЯДОК ВЫПОЛНЕНИЯ


  1. ПРОВЕРЬТЕ СОСТОЯНИЕ КОНТРОЛЬНОЙ ЛАМПЫ MIL


    1. Убедитесь, что контрольная лампа неисправности (MIL) загорается при включении зажигания.

      OK
      MIL загорается.
      Результат
      Следующий шаг
      OK
      NG

    OK
    NG
  2. ПРОВЕРЬТЕ СОЕДИНЕНИЕ МЕЖДУ GTS И ECM


    1. Подключите GTS к DLC3.

    2. Установите замок зажигания в положение ON (ВКЛ).

    3. Включите GTS.

    4. Проверьте состояние обмена данными между GTS и ЕСМ.

      Результат
      Результат Следующий шаг
      Обмен данными не осуществляется А
      Обмен данными осуществляется B

    B
    А
  3. ПРОВЕРЬТЕ MIL (ДАТЧИК ПОЛОЖЕНИЯ ДРОССЕЛЬНОЙ ЗАСЛОНКИ)


    1. Отсоедините разъем корпуса дроссельной заслонки.

    2. Установите замок зажигания в положение ON (ВКЛ).

    3. Проверьте контрольную лампу MIL.

      Результат
      Результат Следующий шаг
      MIL не загорается А
      MIL загорается B

      Tech Tips

      После замены корпуса дроссельной заслонки в сборе выполните процедуру "Проверка после ремонта".

      Нажмите здесь Click here


    B
    А
  4. ПРОВЕРЬТЕ MIL (ДАТЧИК ПОЛОЖЕНИЯ ПЕДАЛИ АКСЕЛЕРАТОРА В СБОРЕ)


    1. Отсоедините разъем датчика положения педали акселератора в сборе.

    2. Установите замок зажигания в положение ON (ВКЛ).

    3. Проверьте контрольную лампу MIL.

      Результат
      Результат Следующий шаг
      MIL не загорается А
      MIL загорается B

    B
    А
  5. ПРОВЕРЬТЕ КОНТРОЛЬНУЮ ЛАМПУ MIL (ДАТЧИК ПОЛОЖЕНИЯ РАСПРЕДВАЛА ВПУСКНЫХ КЛАПАНОВ)


    1. Отсоедините разъем датчика положения распредвала впускных клапанов.

    2. Установите замок зажигания в положение ON (ВКЛ).

    3. Проверьте контрольную лампу MIL.

      Результат
      Результат Перейти к
      MIL не загорается А
      MIL загорается B

    B
    А
  6. ПРОВЕРЬТЕ КОНТРОЛЬНУЮ ЛАМПУ MIL (ДАТЧИК ПОЛОЖЕНИЯ РАСПРЕДВАЛА ВЫПУСКНЫХ КЛАПАНОВ)


    1. Отсоедините разъем датчика положения распредвала выпускных клапанов.

    2. Установите замок зажигания в положение ON (ВКЛ).

    3. Проверьте контрольную лампу MIL.

      Результат
      Результат Перейти к
      MIL не загорается А
      MIL загорается B

    B
    А
  7. ПРОВЕРЬТЕ КОНТРОЛЬНУЮ ЛАМПУ MIL (ДАТЧИК АБСОЛЮТНОГО ДАВЛЕНИЯ В КОЛЛЕКТОРЕ)


    1. Отсоедините разъем датчика абсолютного давления в коллекторе.

    2. Установите замок зажигания в положение ON (ВКЛ).

    3. Проверьте контрольную лампу MIL.

      Результат
      Результат Перейти к

      MIL не загорается

      (для моделей с бесступенчатой трансмиссией)

      А

      MIL не загорается

      (для моделей с механической трансмиссией)

      B
      MIL загорается C

    B
    C
    А
  8. ПРОВЕРЬТЕ КОНТРОЛЬНУЮ ЛАМПУ MIL (ДАТЧИК ДАВЛЕНИЯ МАСЛА)


    1. Отсоедините разъем датчика давления масла.

    2. Установите замок зажигания в положение ON (ВКЛ).

    3. Проверьте контрольную лампу MIL.

      Результат
      Результат Перейти к
      MIL не загорается А
      MIL загорается B

    B
    А
  9. ПРОВЕРЬТЕ ЖГУТ ПРОВОДОВ И РАЗЪЕМ


    1. Отсоедините разъем корпуса дроссельной заслонки.

    2. Отсоедините разъем датчика положения педали акселератора в сборе.

    3. Отсоедините разъем датчика положения распредвала впускных клапанов.

    4. Отсоедините разъем датчика положения распредвала выпускных клапанов.

    5. Отсоедините разъем датчика абсолютного давления в коллекторе.

    6. Отсоедините разъем датчика давления масла (для моделей с бесступенчатой трансмиссией).

    7. Отсоедините разъемы ECM.

    8. Измерьте сопротивление в соответствии со значениями, приведенными в таблице ниже.

      Номинальное сопротивление
      Подключение диагностического прибора Условие Заданные условия
      B186-134 (VCTA) - масса Всегда 10 кОм или более
      A50-49 (VCPA) - масса Всегда 10 кОм или более
      A50-52 (VCP2) - масса Всегда 10 кОм или более
      B186-116 (VCV1) - масса Всегда 10 кОм или более
      B186-111 (VCE1) - масса Всегда 10 кОм или более
      B186-77 (VCPM) - масса Всегда 10 кОм или более
      B186-110 (VCPT)* - масса Всегда 10 кОм или более

      *: для моделей с бесступенчатой трансмиссией

      Результат
      Следующий шаг
      OK
      NG

    OK
    NG