СИСТЕМА БЛОКИРОВКИ РУЛЕВОГО УПРАВЛЕНИЯ, Diagnostic DTC:B2782

Код DTC Наименование DTC
B2782 Неисправность ЭБУ распределения питания

ОПИСАНИЕ

ЭБУ сертификации (ЭБУ электронного ключа зажигания в сборе) выполняет функцию переключения режима источника питания.

Данный DTC регистрируется, когда определяется ненормальное состояние сигнала IGE (сигнал разрешения включения электродвигателя блокировки рулевого управления), который передается напрямую из ЭБУ сертификации (ЭБУ электронного ключа зажигания) в ЭБУ блокировки рулевого управления (привод блокировки рулевого управления или верхний кронштейн в сборе).

ЭБУ блокировки рулевого управления в сборе (привод блокировки рулевого управления или верхний кронштейн в сборе) не подключен к системе передачи данных CAN. Однако ЭБУ блокировки рулевого управления (привод блокировки рулевого управления или передний кронштейн в сборе) соединен с ЭБУ сертификации (ЭБУ электронного ключа зажигания) по шине LIN и обменивается данными с другими узлами по шине CAN через ЭБУ сертификации (ЭБУ электронного ключа зажигания).

№ DTC Неисправность Условие обнаружения DTC Неисправный участок Примечание
B2782 Неисправность ЭБУ распределения питания

Выполняется одно из следующих условий (логика диагностирования за 1 поездку (выводится только при наличии неисправности и нахождении выключателя зажигания в состоянии ON (ВКЛ) (IG))).:


  • В цепи включения электродвигателя блокировки рулевого управления имеется короткое замыкание.

  • В цепи включения электродвигателя блокировки рулевого управления имеется обрыв.

Tech Tips

Если сигнал источника питания, получаемый по шине LIN, не совпадает с сигналом источника питания, принимаемым напрямую, регистрируется неисправность системы.


  • ЭБУ блокировки рулевого управления (привод блокировки рулевого управления верхний кронштейн в сборе)

  • ЭБУ сертификации (ЭБУ электронного ключа зажигания в сборе)

  • Жгут или разъем


    Операция подтверждения вывода DTC:

  • Выполните операцию блокировки/разблокировки рулевого управления. (Рулевое управление блокируется при выключенном зажигании, когда дверь открывается, а рычаг переключения передач установлен в положение P*. Рулевое управление разблокируется, когда водитель, имеющий при себе передатчик электронного ключа в сборе, включает зажигание (ACC) или (IG).)


Состояние автомобиля и аварийный режим при обнаружении неисправности
Состояние автомобиля при обнаружении неисправности Аварийный режим при обнаружении неисправности
Невозможна блокировка или разблокировка рулевого управления. Поэтому двигатель не запускается. Запуск двигателя запрещается.
Связанные параметры режимов Data List и Active Test
№ DTC Режимы Data List и Active Test
B2782 -

СХЕМА ЭЛЕКТРИЧЕСКИХ СОЕДИНЕНИЙ

B001DXBE03
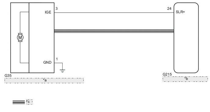
*a ЭБУ блокировки рулевого управления (привод блокировки рулевого управления верхний кронштейн в сборе)
*b ЭБУ сертификации (ЭБУ электронного ключа зажигания в сборе)
*c Линия передачи данных LIN

ПРЕДОСТЕРЕЖЕНИЕ / ПРИМЕЧАНИЕ / УКАЗАНИЕ

Note


  • При использовании GTS с выключенным зажиганием двигателя, подсоедините GTS к DLC3 и включайте и выключайте освещение проема двери с интервалами 1,5 секунды или менее до тех пор, пока не начнется обмен данными между GTS и автомобилем. Затем выберите код модели "KEY REGIST" в ручном режиме и войдите в следующие пункты меню: Body Electrical / Entry&Start(CAN). При использовании GTS периодически включайте и выключайте выключатель освещения дверного проема с интервалом не более 1,5 с, чтобы поддерживать связь между GTS и автомобилем.

  • Перед заменой ЭБУ блокировки рулевого управления (привода блокировки рулевого управления или верхнего кронштейна в сборе) или ЭБУ сертификации (ЭБУ электронного ключа зажигания в сборе) ознакомьтесь с бюллетенем технического обслуживания.

  • После ремонта выполните операцию "Подтверждение вывода кода DTC" и убедитесь, что коды DTC не выводятся.

  • Если отрицательный (-) вывод аккумуляторной батареи отсоединялся, после его подсоединения необходимо инициализировать некоторые системы.

    Нажмите здесь Click here

ПОРЯДОК ВЫПОЛНЕНИЯ


  1. ПРОВЕРЬТЕ ЭБУ БЛОКИРОВКИ РУЛЕВОГО УПРАВЛЕНИЯ (ПРИВОД БЛОКИРОВКИ РУЛЕВОГО УПРАВЛЕНИЯ ИЛИ ВЕРХНИЙ КРОНШТЕЙН В СБОРЕ) (СИГНАЛ ВКЛЮЧЕНИЯ ЭЛЕКТРОДВИГАТЕЛЯ)


    1. B001EHJC04
      *a

      Устройство с подсоединенным жгутом проводов

      (ЭБУ блокировки рулевого управления (привод блокировки рулевого управления или верхний кронштейн в сборе))

      *b Электродвигатель блокировки рулевого управления не работает
      *c Электродвигатель блокировки рулевого управления работает
      *d Осциллограмма

      С помощью осциллографа проверьте форму сигнала.

      OK
      Параметр / Устройство Описание
      Подключение диагностического прибора G35-3 (IGE) - G35-1 (GND)
      Настройки прибора 2 В / дел., 200 мс/ дел.
      Условие

      Любая из дверей открыта при соблюдении других условий, выполняется активация электродвигателя блокировки рулевого управления:


      • Рычаг переключения передач в положении Р*

      • Рулевое управление разблокировано пользователем, который имел при себе передатчик электронного ключа в сборе и включил зажигание (IG)

      • После выполнения указанных выше условий зажигание выключается

      Заданные условия

      Формирование импульсов

      (см. осциллограмму)


      • *: для моделей с автоматической трансмиссией

      Tech Tips


      • При проведении измерений, когда двигатель блокировки не работает, не требуется выполнять никаких действий.

      • Чтобы провести измерения во время работы двигателя блокировки, выполните одно из следующих действий:


        • Чтобы разблокировать рулевое управление, поместите передатчик электронного ключа в сборе в салон и включите зажигание (ACC) или (IG).

        • Чтобы заблокировать рулевое управление, выключите зажигание с рычагом переключения передач в положении P*, а затем откройте дверь.


          • *: для моделей с автоматической трансмиссией

      Результат
      Следующий шаг
      OK
      NG

    NG
    OK
  2. УДАЛИТЕ DTC И ДАННЫЕ DATA LIST О НЕИСПРАВНОСТЯХ


    1. Подключите GTS к DLC3.

    2. Включите зажигание (IG).

    3. Включите GTS.

    4. Войдите в следующие меню: Body Electrical / Entry&Start / Trouble Codes.

    5. Сбросьте коды DTC.

      Нажмите здесь Click here

    6. Выключите зажигание.

    7. Отсоедините провод от отрицательного (-) вывода аккумуляторной батареи, подождите не менее 30 с, а затем подсоедините провод к отрицательному (-) выводу аккумуляторной батареи, чтобы удалить запись о неисправностях в режиме Data List.

      Note

      После выключения двигателя следует подождать некоторое время, прежде чем отсоединять провод от вывода аккумуляторной батареи. Поэтому, прежде чем приступать к этой работе, обязательно ознакомьтесь с примечанием относительно отсоединения провода от вывода аккумуляторной батареи.

      Нажмите здесь Click here

      Результат
      Перейти к
      ДАЛЕЕ

    ДАЛЕЕ
  3. ПРОВЕРЬТЕ DTC


    1. Выполните операцию подтверждения вывода DTC.

    2. Проверьте, выводится ли DTC B2782.

      Нажмите здесь Click here

      Результат
      Результат Следующий шаг
      DTC B2782 не выводится. А
      Выводится DTC B2782. B

    А
    B
  4. ПРОВЕРЬТЕ ЖГУТ ПРОВОДОВ И РАЗЪЕМ (ЭБУ БЛОКИРОВКИ РУЛЕВОГО УПРАВЛЕНИЯ (ПРИВОД БЛОКИРОВКИ РУЛЕВОГО УПРАВЛЕНИЯ ИЛИ ВЕРХНИЙ КРОНШТЕЙН В СБОРЕ) - ЭБУ СЕРТИФИКАЦИИ (ЭБУ ЭЛЕКТРОННОГО КЛЮЧА ЗАЖИГАНИЯ В СБОРЕ) И МАССА)


    1. Отсоедините разъем G35 ЭБУ блокировки рулевого управления (привода блокировки рулевого управления или верхнего кронштейна в сборе).

    2. Отсоедините разъем G215 ЭБУ сертификации (ЭБУ электронного ключа зажигания в сборе).

    3. Измерьте сопротивление в соответствии со значениями, приведенными в таблице ниже.

      Номинальное сопротивление
      Подключение диагностического прибора Условие Заданные условия
      G35-3 (IGE) - G215-24 (SLR+) Всегда Менее 1 Ом
      G35-1 (GND) - масса Всегда Менее 1 Ом
      G35-3 (IGE) или G215-24 (SLR+) - другие контакты и масса Всегда 10 кОм или более

      Note

      Если результат не соответствует заданному, проверьте надежность соединения с массой.

      Результат
      Перейти к
      OK
      NG

    OK
    NG