СИСТЕМА ПЕРЕДАЧИ ДАННЫХ CAN (для моделей с правосторонним рулевым управлением без ЭБУ центрального сетевого шлюза) Режим прекращения обмена данными с ЭБУ системы предупреждения о ненадлежащем давлении в шинах

ОПИСАНИЕ

Неисправность Признак Неисправный участок
Режим прекращения обмена данными с ЭБУ системы предупреждения о ненадлежащем давлении в шинах

Выполняется любое из следующих условий:


  • На экране "Bus Check" (проверка шин) не отображается "Tire Pressure" (давление в шинах) (см. стр. Click here).

  • Выводимые коды DTC системы передачи данных (начинающиеся на U) соответствуют "Режиму прекращения обмена данными с ЭБУ системы предупреждения о ненадлежащем давлении в шинах" в "Таблице комбинаций кодов DTC" (см. стр. Click here)


  • Вспомогательная шина CAN или разъем ЭБУ системы предупреждения о ненадлежащем давлении в шинах

  • Цепь питания ЭБУ системы предупреждения о ненадлежащем давлении в шинах

  • Цепь массы ЭБУ системы предупреждения о ненадлежащем давлении в шинах

  • ЭБУ системы предупреждения о ненадлежащем давлении в шинах

СХЕМА ЭЛЕКТРИЧЕСКИХ СОЕДИНЕНИЙ

B001W4AE02
B001ZU1E22
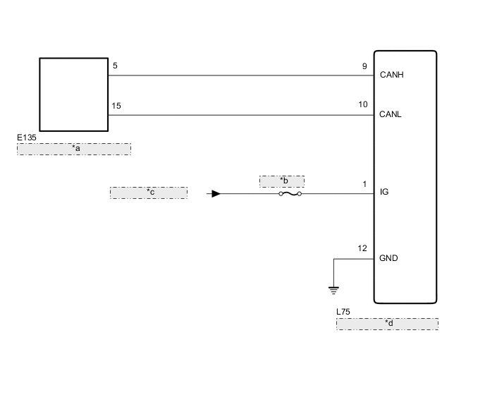
для моделей с передней антенной
*a Разъем распределительного блока шины CAN № 1
*b ECU-IG № 2
*c От реле IG1 № 1
*d ЭБУ системы предупреждения о ненадлежащем давлении в шинах

ПРЕДОСТЕРЕЖЕНИЕ / ПРИМЕЧАНИЕ / УКАЗАНИЕ

Note


  • Перед измерением сопротивления шины CAN, выключите зажигание и оставьте автомобиль в покое на 1 минуту или более, не трогая замок зажигания, другие переключатели и не открывая/закрывая двери. После этого, отсоедините провод от отрицательного (-) вывода аккумуляторной батареи и перед измерением сопротивления оставьте автомобиль в покое на 1 минуту или более.

  • После выключения двигателя следует подождать некоторое время, прежде чем отсоединять провод от вывода аккумуляторной батареи. Поэтому, прежде чем приступать к этой работе, обязательно ознакомьтесь с примечанием относительно отсоединения провода от вывода аккумуляторной батареи (см. стр. Click here).

  • Перед выполнением следующей процедуры проверки проверьте предохранители цепей, относящихся к данной системе.

Tech Tips


  • Управление замком зажигания, любыми выключателями или связанными с дверными защелками ЭБУ и датчиками, обмен данными с которыми осуществляется посредством сети CAN, приводит к колебанию сопротивления.

  • Если DTC регистрируется при непродолжительном движении на автомобиле даже после удаления кодов DTC, неисправность может возникать вследствие вибрации автомобиля. В подобных случаях необходимо пошевелить разъемы ЭБУ или жгутов проводов во время проверки, чтобы установить причину неисправности.

ПОРЯДОК ВЫПОЛНЕНИЯ


  1. ПРОВЕРЬТЕ ШИНУ CAN НА ОБРЫВ (ВСПОМОГАТЕЛЬНАЯ ШИНА CAN ЭБУ СИСТЕМЫ ПРЕДУПРЕЖДЕНИЯ О НЕНАДЛЕЖАЩЕМ ДАВЛЕНИИ В ШИНАХ)


    1. B001YGPE01
      Обозначения на рисунке
      *A для моделей без передней антенны
      *B для моделей с передней антенной
      *a

      Вид спереди разъема со стороны жгута проводов:

      (к ЭБУ системы предупреждения о ненадлежащем давлении в шинах)

      Отсоедините провод от отрицательного (-) вывода аккумуляторной батареи.

    2. Отсоедините разъем ЭБУ системы предупреждения о ненадлежащем давлении в шинах.

    3. Измерьте сопротивление в соответствии со значениями, приведенными в таблице ниже.

      Номинальное сопротивление
      Для моделей без передней антенны:
      Подключение диагностического прибора Условие Заданные условия
      L65-9 (CANH) - L65-10 (CANL) Провод отсоединен от отрицательного (-) вывода аккумуляторной батареи 54 - 69 Ом
      Для моделей с передней антенной:
      Подключение диагностического прибора Условие Заданные условия
      L75-9 (CANH) - L75-10 (CANL) Провод отсоединен от отрицательного (-) вывода аккумуляторной батареи 54 - 69 Ом

    NG
    OK
  2. ПРОВЕРЬТЕ ЖГУТ ПРОВОДОВ И РАЗЪЕМ (ЭБУ СИСТЕМЫ ПРЕДУПРЕЖДЕНИЯ О НЕНАДЛЕЖАЩЕМ ДАВЛЕНИИ В ШИНАХ – АККУМУЛЯТОРНАЯ БАТАРЕЯ И МАССА)


    1. B001Y6XE01
      Обозначения на рисунке
      *A для моделей без передней антенны
      *B для моделей с передней антенной
      *a

      Вид спереди разъема со стороны жгута проводов:

      (к ЭБУ системы предупреждения о ненадлежащем давлении в шинах)

      Подсоедините провод к отрицательному (-) выводу аккумуляторной батареи.

      Note

      После подсоединения провода необходимо инициализировать некоторые системы (см. стр. Click here).

    2. Измерьте напряжение в соответствии со значениями, приведенными в таблице.

      Номинальное напряжение
      Для моделей без передней антенны:
      Подключение диагностического прибора Условие Заданные условия
      L65-7 (+B) - масса Всегда 11-14 В
      L65-1 (IG) - масса Зажигание включено 11-14 В
      Для моделей с передней антенной:
      Подключение диагностического прибора Положение переключателя Заданные условия
      L75-1 (IG) - масса Зажигание включено 11-14 В
    3. Измерьте сопротивление в соответствии со значениями, приведенными в таблице ниже.

      Номинальное сопротивление
      Для моделей без передней антенны:
      Подключение диагностического прибора Условие Заданные условия
      L65-12 (GND) - масса Всегда Менее 1 Ом
      Для моделей с передней антенной:
      Подключение диагностического прибора Условие Заданные условия
      L75-12 (GND) - масса Всегда Менее 1 Ом

    OK
    NG