СИСТЕМА ПЕРЕДАЧИ ДАННЫХ CAN (для моделей с левосторонним рулевым управлением с ЭБУ центрального сетевого шлюза) Режим прекращения обмена данными с ЭБУ системы AFS

ОПИСАНИЕ

Неисправность Признак Неисправный участок
Режим прекращения обмена данными с ЭБУ системы AFS

Выполняется любое из следующих условий:


  • На экране "Communication Bus Check" (проверка шины передачи данных) GTS для параметра "Headlight swivel (AFS)" отображается прекращение обмена данными (см. стр. Click here).

  • Выводимые коды DTC системы передачи данных (начинающиеся на U) соответствуют "Режиму прекращения обмена данными с ЭБУ системы AFS" в "Таблице комбинаций кодов DTC" (см. стр. Click here).


  • Вспомогательная шина CAN или разъем ЭБУ устройства поворота фар

  • Цепь питания ЭБУ устройства поворота фар в сборе

  • Цепь массы ЭБУ устройства поворота фар

  • ЭБУ устройства поворота фар в сборе

СХЕМА ЭЛЕКТРИЧЕСКИХ СОЕДИНЕНИЙ

B001X1GE03
B001ZU1E26
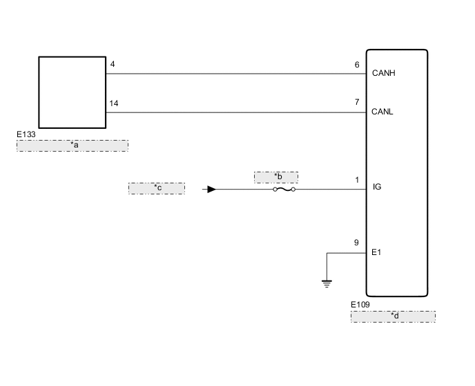
Для моделей без системы автоматического включения дальнего света
*a Разъем распределительного блока шины CAN № 2
*b ENG-IG № 1
*c От реле IG1
*d ЭБУ системы управления уровнем фар

ПРЕДОСТЕРЕЖЕНИЕ / ПРИМЕЧАНИЕ / УКАЗАНИЕ

Note


  • По причине того, что порядок диагностики важен для обеспечения правильной диагностики, начните с процедур поиска неисправностей в случае появления кодов DTC, относящихся к системе передачи данных CAN (см. стр. Click here).

  • Перед измерением сопротивления шины CAN, выключите зажигание и оставьте автомобиль в покое на 1 минуту или более, не трогая замок зажигания, другие переключатели и не открывая/закрывая двери. После этого, отсоедините провод от отрицательного (-) вывода аккумуляторной батареи и перед измерением сопротивления оставьте автомобиль в покое на 1 минуту или более.

  • После выключения двигателя следует подождать некоторое время, прежде чем отсоединять провод от вывода аккумуляторной батареи. Поэтому, прежде чем приступать к этой работе, обязательно ознакомьтесь с примечанием относительно отсоединения провода от вывода аккумуляторной батареи (см. стр. Click here).

  • Перед выполнением следующей процедуры проверки проверьте предохранители цепей, относящихся к данной системе.

  • После ремонта выполните процедуру проверки кодов DTC и убедитесь, что коды DTC не выводятся снова.

  • Процедура проверки кодов DTC: Установите замок зажигания в положение ON (ВКЛ) и подождите не менее 20 с.

  • После ремонта выполните проверку шины CAN и убедитесь, что отображаются все ЭБУ и датчики, подсоединенные к системе передачи данных CAN (См. стр. Click here).

Tech Tips


  • Управление замком зажигания, любыми выключателями или связанными с дверными защелками ЭБУ и датчиками, обмен данными с которыми осуществляется посредством сети CAN, приводит к колебанию сопротивления.

  • Если DTC регистрируется при непродолжительном движении на автомобиле даже после удаления кодов DTC, неисправность может возникать вследствие вибрации автомобиля. В подобных случаях необходимо пошевелить разъемы ЭБУ или жгутов проводов во время проверки, чтобы установить причину неисправности.

ПОРЯДОК ВЫПОЛНЕНИЯ


  1. ПРОВЕРЬТЕ ШИНУ CAN НА ОБРЫВ (ВСПОМОГАТЕЛЬНАЯ ШИНА CAN ЭБУ СИСТЕМЫ УПРАВЛЕНИЯ УРОВНЕМ ФАР)


    1. B001YOQE01
      Обозначения на рисунке
      *A для моделей с системой автоматического включения дальнего света
      *B Для моделей без системы автоматического включения дальнего света
      *a

      Вид спереди разъема со стороны жгута проводов:

      (к ЭБУ системы управления уровнем фар в сборе)

      Отсоедините провод от отрицательного (-) вывода аккумуляторной батареи.

    2. Отсоедините разъем ЭБУ управления уровнем фар.

    3. Измерьте сопротивление в соответствии со значениями, приведенными в таблице ниже.

      Номинальное сопротивление
      Для моделей с системой автоматического включения дальнего света:
      Подключение диагностического прибора Условие Заданные условия
      E101-12 (CANH) - E101-13 (CANL) Провод отсоединен от отрицательного (-) вывода аккумуляторной батареи 54 - 69 Ом
      Для моделей без системы автоматического включения дальнего света:
      Подключение диагностического прибора Условие Заданные условия
      E109-6 (CANH) - E109-7 (CANL) Провод отсоединен от отрицательного (-) вывода аккумуляторной батареи 54 - 69 Ом

    NG
    OK
  2. ПРОВЕРЬТЕ ЖГУТ ПРОВОДОВ И РАЗЪЕМ (ЭБУ СИСТЕМЫ УПРАВЛЕНИЯ УРОВНЕМ ФАР В СБОРЕ – АККУМУЛЯТОРНАЯ БАТАРЕЯ И МАССА)


    1. B001X6NE01
      Обозначения на рисунке
      *A для моделей с системой автоматического включения дальнего света
      *B Для моделей без системы автоматического включения дальнего света
      *a

      Вид спереди разъема со стороны жгута проводов:

      (к ЭБУ системы управления уровнем фар в сборе)

      Подсоедините провод к отрицательному (-) выводу аккумуляторной батареи.

      Note

      После подсоединения провода необходимо инициализировать некоторые системы (см. стр. Click here).

    2. Измерьте напряжение в соответствии со значениями, приведенными в таблице.

      Номинальное напряжение
      Для моделей с системой автоматического включения дальнего света:
      Подключение диагностического прибора Положение переключателя Заданные условия
      E101-15 (IG) - масса Зажигание включено 11-14 В
      E101-14 (IGS) - масса Зажигание включено 11-14 В
      Для моделей без системы автоматического включения дальнего света:
      Подключение диагностического прибора Положение переключателя Заданные условия
      E109-1 (IG) - масса Зажигание включено 11-14 В
    3. Измерьте сопротивление в соответствии со значениями, приведенными в таблице ниже.

      Номинальное сопротивление
      Для моделей с системой автоматического включения дальнего света:
      Подключение диагностического прибора Условие Заданные условия
      E101-22 (E1) - масса Всегда Менее 1 Ом
      Для моделей без системы автоматического включения дальнего света:
      Подключение диагностического прибора Условие Заданные условия
      E109-9 (E1) - масса Всегда Менее 1 Ом

    OK
    NG