AUDIO AND VISUAL SYSTEM Speaker Circuit

DESCRIPTION

If there is a short in a speaker circuit, the stereo component amplifier assembly detects it and stops output to the speakers.

As a result, sound cannot be heard from the speakers even if there is no malfunction in the stereo component amplifier assembly or speakers.

WIRING DIAGRAM

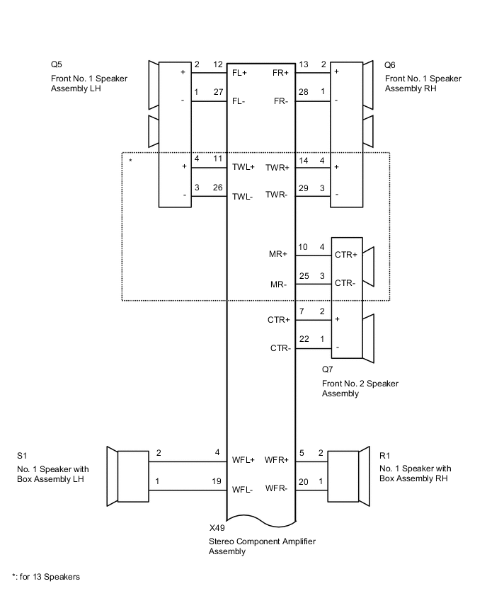
B000WK9E05
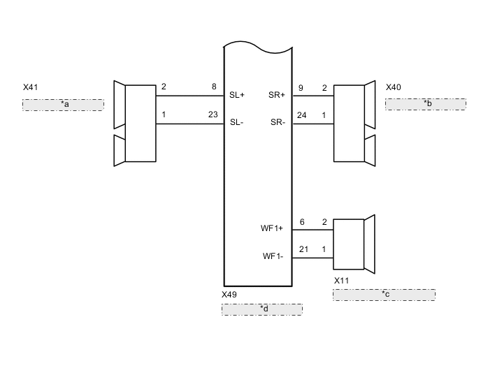
B000VDRE03
*a No. 2 Speaker with Box Assembly LH
*b No. 2 Speaker with Box Assembly RH
*c No. 3 Speaker with Box Assembly
*d Stereo Component Amplifier Assembly

CAUTION / NOTICE / HINT

Tech Tips

Depending on the parts that are replaced during vehicle inspection or maintenance, performing initialization, registration or calibration may be needed. Refer to Precaution for Audio and Visual System.

Click here

PROCEDURE


  1. CHECK HARNESS AND CONNECTOR (SPEAKER CIRCUIT)


    • *1: for LH Side

      *2: for RH Side

      *3: for 13 Speakers


    1. Disconnect the X49 stereo component amplifier assembly connector.

    2. Disconnect the Q5*1 and/or Q6*2 front No. 1 speaker assembly connector.

    3. Disconnect the S1*1 and/or R1*2 No. 1 speaker with box assembly connector.

    4. Disconnect the X41*1 and/or X40*2 No. 2 speaker with box assembly connector.

    5. Disconnect the Q7 front No. 2 speaker assembly connector.

    6. Disconnect the X11 No. 3 speaker with box assembly connector.

    7. Measure the resistance according to the value(s) in the table below.

      Standard Resistance
      for LH Side:
      Tester Connection Condition Specified Condition
      Q5-2 (+) - X49-12 (FL+) Always Below 1 Ω
      Q5-1 (-) - X49-27 (FL-) Always Below 1 Ω
      Q5-4 (+) - X49-11 (TWL+)*3 Always Below 1 Ω
      Q5-3 (-) - X49-26 (TWL-)*3 Always Below 1 Ω
      S1-2 - X49-4 (WFL+) Always Below 1 Ω
      S1-1 - X49-19 (WFL-) Always Below 1 Ω
      X41-2 - X49-8 (SL+) Always Below 1 Ω
      X41-1 - X49-23 (SL-) Always Below 1 Ω
      Q5-2 (+) - Body ground Always 10 kΩ or higher
      Q5-1 (-) - Body ground Always 10 kΩ or higher
      Q5-4 (+) - Body ground Always 10 kΩ or higher
      Q5-3 (-) - Body ground Always 10 kΩ or higher
      S1-2 - Body ground Always 10 kΩ or higher
      S1-1 - Body ground Always 10 kΩ or higher
      X41-2 - Body ground Always 10 kΩ or higher
      X41-1 - Body ground Always 10 kΩ or higher
      for RH Side:
      Tester Connection Condition Specified Condition
      Q6-2 (+) - X49-13 (FR+) Always Below 1 Ω
      Q6-1 (-) - X49-28 (FR-) Always Below 1 Ω
      Q6-4 (+) - X49-14 (TWR+)*3 Always Below 1 Ω
      Q6-3 (-) - X49-29 (TWR-)*3 Always Below 1 Ω
      R1-2 - X49-5 (WFR+) Always Below 1 Ω
      R1-1 - X49-20 (WFR-) Always Below 1 Ω
      X40-2 - X49-9 (SR+) Always Below 1 Ω
      X40-1 - X49-24 (SR-) Always Below 1 Ω
      Q6-2 (+) - Body ground Always 10 kΩ or higher
      Q6-1 (-) - Body ground Always 10 kΩ or higher
      Q6-4 (+) - Body ground*3 Always 10 kΩ or higher
      Q6-3 (-) - Body ground*3 Always 10 kΩ or higher
      R1-2 - Body ground Always 10 kΩ or higher
      R1-1 - Body ground Always 10 kΩ or higher
      X40-2 - Body ground Always 10 kΩ or higher
      X40-1 - Body ground Always 10 kΩ or higher
      for Center Side:
      Tester Connection Condition Specified Condition
      Q7-4 (CTR+) - X49-10 (MR+)*3 Always Below 1 Ω
      Q7-3 (CTR-) - X49-25 (MR-)*3 Always Below 1 Ω
      Q7-2 (+) - X49-7 (CTR+) Always Below 1 Ω
      Q7-1 (-) - X49-22 (CTR-) Always Below 1 Ω
      X11-2 - X49-6 (WF1+) Always Below 1 Ω
      X11-1 - X49-21 (WF1-) Always Below 1 Ω
      Q7-4 (CTR+) - Body ground*3 Always 10 kΩ or higher
      Q7-3 (CTR-) - Body ground*3 Always 10 kΩ or higher
      Q7-2 (+) - Body ground Always 10 kΩ or higher
      Q7-1 (-) - Body ground Always 10 kΩ or higher
      X11-2 - Body ground Always 10 kΩ or higher
      X11-1 - Body ground Always 10 kΩ or higher
      Result
      Proceed to
      OK
      NG

    NG
    OK
  2. CHECK VEHICLE TYPE


    1. Check the vehicle type.

      Result
      Result Proceed to
      for 12 Speakers A
      for 13 Speakers B

    B
    A
  3. INSPECT NO. 1 SPEAKER WITH BOX ASSEMBLY


    1. Remove the No. 1 speaker with box assembly.

      Click here

    2. Inspect the No. 1 speaker with box assembly.

      Click here

      Result
      Proceed to
      OK
      NG

    NG
    OK
  4. INSPECT NO. 3 SPEAKER WITH BOX ASSEMBLY


    1. Remove the No. 3 speaker with box assembly.

      Click here

    2. Inspect the No. 3 speaker with box assembly.

      Click here

      Result
      Proceed to
      OK
      NG

    NG
    OK
  5. INSPECT FRONT NO. 2 SPEAKER ASSEMBLY


    1. Remove the front No. 2 speaker assembly.

      Click here

    2. Inspect the front No. 2 speaker assembly.

      Click here

      Result
      Proceed to
      OK
      NG

    NG
    OK
  6. CHECK FRONT NO. 1 SPEAKER ASSEMBLY


    1. Replace the front No. 1 speaker assembly with a new or known good one.

      Click here

    2. Check the malfunction disappears.

      OK
      Malfunction disappears.

      Tech Tips


      • Connect all the connectors to the front No. 1 speaker assemblies that were disconnected.

      • When there is a possibility that either the right or left front speaker is defective, inspect by interchanging the right one with the left one.

      • Perform the above inspection on both the LH and RH sides.

      Result
      Proceed to
      OK
      NG

    OK
    NG
  7. CHECK NO. 2 SPEAKER WITH BOX ASSEMBLY


    1. Replace the No. 2 speaker with box assembly with a new or known good one.

      Click here

    2. Check the malfunction disappears.

      OK
      Malfunction disappears.

      Tech Tips


      • Connect all the connectors to the No. 2 speaker with box assemblies that were disconnected.

      • When there is a possibility that either the right or left front speaker is defective, inspect by interchanging the right one with the left one.

      • Perform the above inspection on both the LH and RH sides.

      Result
      Proceed to
      OK
      NG

    OK
    NG
  8. INSPECT NO. 1 SPEAKER WITH BOX ASSEMBLY


    1. Remove the No. 1 speaker with box assembly.

      Click here

    2. Inspect the No. 1 speaker with box assembly.

      Click here

      Result
      Proceed to
      OK
      NG

    NG
    OK
  9. INSPECT NO. 3 SPEAKER WITH BOX ASSEMBLY


    1. Remove the No. 3 speaker with box assembly.

      Click here

    2. Inspect the No. 3 speaker with box assembly.

      Click here

      Result
      Proceed to
      OK
      NG

    NG
    OK
  10. CHECK FRONT NO. 2 SPEAKER ASSEMBLY


    1. Replace the front No. 2 speaker assembly with a new or known good one.

      Click here

    2. Check the malfunction disappears.

      OK
      Malfunction disappears.
      Result
      Proceed to
      OK
      NG

    OK
    NG
  11. CHECK FRONT NO. 1 SPEAKER ASSEMBLY


    1. Replace the front No. 1 speaker assembly with a new or known good one.

      Click here

    2. Check the malfunction disappears.

      OK
      Malfunction disappears.

      Tech Tips


      • Connect all the connectors to the front No. 1 speaker assemblies that were disconnected.

      • When there is a possibility that either the right or left front speaker is defective, inspect by interchanging the right one with the left one.

      • Perform the above inspection on both the LH and RH sides.

      Result
      Proceed to
      OK
      NG

    OK
    NG
  12. CHECK NO. 2 SPEAKER WITH BOX ASSEMBLY


    1. Replace the No. 2 speaker with box assembly with a new or known good one.

      Click here

    2. Check the malfunction disappears.

      OK
      Malfunction disappears.

      Tech Tips


      • Connect all the connectors to the No. 2 speaker with box assemblies that were disconnected.

      • When there is a possibility that either the right or left front speaker is defective, inspect by interchanging the right one with the left one.

      • Perform the above inspection on both the LH and RH sides.

      Result
      Proceed to
      OK
      NG

    OK
    NG