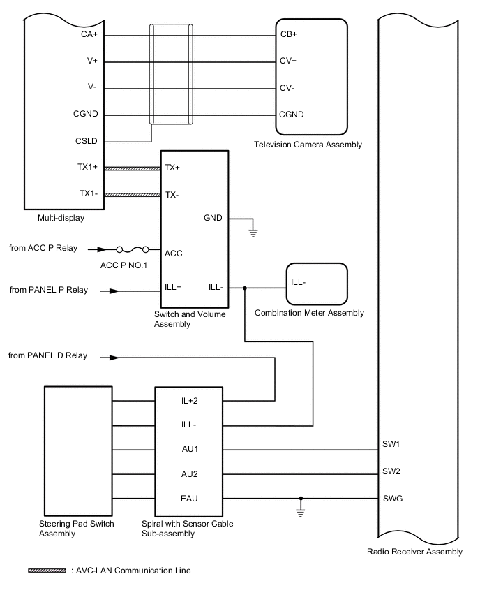
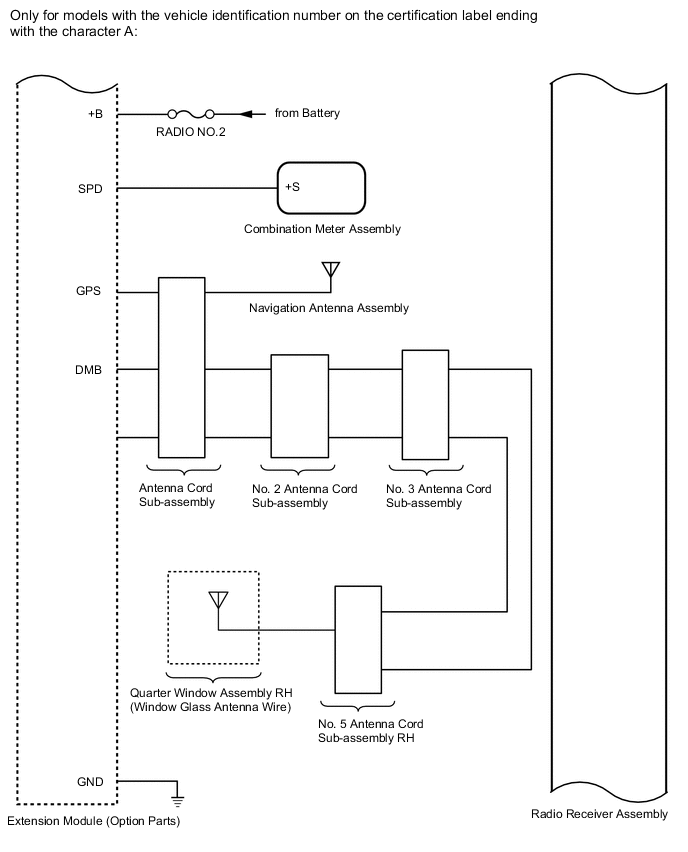
AUDIO AND VISUAL SYSTEM SYSTEM DIAGRAM

B000VSPE02
B000UAHE01
B000UN4E02
B000UJBE01
*1 No. 1 Stereo Jack Adapter Assembly
*2 Radio Receiver Assembly
*3 USB Communication Line
B000YH0E01
B000YLVE01
B000W7BE01
B000V06E01
B000Z02E01
B000UD6E01
B000WG6E01
B000XM3E07