СИСТЕМА УПРАВЛЕНИЯ ТОРМОЗАМИ ПОДРОБНОЕ ОПИСАНИЕ ПРИВОДА ТОРМОЗОВ

  1. КОНСТРУКЦИЯ

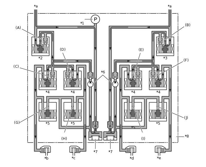
    1. Блок управления рабочими цилиндрами тормозов в сборе состоит из секции блока управления и ЭБУ системы противоскольжения.

    2. Секция блока управления содержит 2 электромагнитных клапана отсечки главного цилиндра, 4 электромагнитных клапана удержания давления, 4 электромагнитных редукционных клапана, 2 насоса, 2 бачка и датчик давления в главном цилиндре.

      X123083C01

      *1

      Модуль привода

      • Электромагнитный клапан отсечки главного цилиндра

      • Электромагнитный клапан удержания давления

      • Электромагнитный редукционный клапан

      • Датчик давления в главном цилиндре

      • Насос

      • Бачок

      *2

      ЭБУ системы противоскольжения

      • Реле электромагнитного клапана

      • Реле электродвигателя

      • Реле отключения электродвигателя

      X124164C01

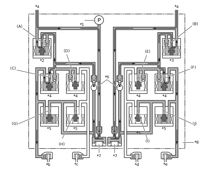
      *1

      Датчик давления в главном цилиндре

      *2

      Электромагнитный клапан отсечки главного цилиндра № 1

      *3

      Электромагнитный клапан отсечки главного цилиндра № 2

      *4

      Электромагнитный клапан удержания давления

      *5

      Электромагнитный редукционный клапан

      *6

      Насос

      *7

      Бачок

      *8

      Блок управления рабочими цилиндрами тормозов

      *a

      От главного цилиндра тормозной системы в сборе

      *b

      Суппорт правого переднего тормоза

      *c

      Суппорт левого переднего тормоза

      *d

      Суппорт правого заднего тормоза

      *e

      Суппорт левого заднего тормоза

      -

      -

  2. ПРИНЦИП РАБОТЫ

    1. АБС и EBD

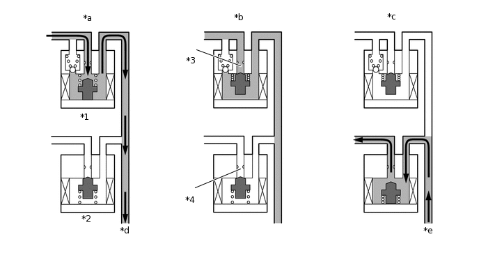
      1. На основе сигналов, полученных от 4 датчиков частоты вращения, ЭБУ системы противоскольжения вычисляет частоту вращения каждого колеса и оценивает вероятность заноса колес. В соответствии с вероятностью пробуксовки ЭБУ системы противоскольжения регулирует давление жидкости в рабочих цилиндрах каждого из колес, управляя электромагнитными клапанами в блоке управления рабочими цилиндрами тормозов в 3 режимах: повышения, удержания и понижения давления.

        X102082C02

        *1

        Электромагнитный клапан удержания давления

        *2

        Электромагнитный редукционный клапан

        *3

        Патрубок A

        *4

        Патрубок B

        *a

        Режим повышения давления

        *b

        Режим удержания давления

        *c

        Режим понижения давления

        *d

        К суппорту тормоза

        *e

        От суппорта тормоза

        -

        -

        Table 1. Действие блока управления рабочими цилиндрами тормозов при работе АБС и EBD

        Режим давления

        Режим повышения давления

        Режим удержания давления

        Режим понижения давления

        Электромагнитный клапан удержания давления (канал А)

        Выкл (открыт)

        Вкл (закрыт)

        Электромагнитный редукционный клапан (канал B)

        Выкл (закрыт)

        Вкл (открыт)

        Давление в рабочем тормозном цилиндре

        Увеличивается

        Удерживается

        Понижается

    2. Усилитель экстренного торможения

      1. В случае экстренного торможения ЭБУ системы противоскольжения оценивает намерение водителя, исходя из скорости повышения давления в главном цилиндре, определяемой по сигналу датчика давления в главном цилиндре. Когда ЭБУ системы противоскольжения принимает решение о необходимости дополнительного увеличения тормозного усилия, насос поднимает давление жидкости в блоке управления рабочими цилиндрами тормозов и создает дополнительное давление в рабочем тормозном цилиндре.

        X124165C01

        *1

        Датчик давления в главном цилиндре

        *2

        Электромагнитный клапан отсечки главного цилиндра № 1

        *3

        Электромагнитный клапан отсечки главного цилиндра № 2

        *4

        Электромагнитный клапан удержания давления

        *5

        Электромагнитный редукционный клапан

        *6

        Насос

        *7

        Бачок

        *8

        Блок управления рабочими цилиндрами тормозов

        *a

        От главного цилиндра тормозной системы в сборе

        *b

        Суппорт правого переднего тормоза

        *c

        Суппорт левого переднего тормоза

        *d

        Суппорт правого заднего тормоза

        *e

        Суппорт левого заднего тормоза

        -

        -

        Table 2. Действие блока управления рабочими цилиндрами тормозов при работе усилителя экстренного торможения

        Параметр / Устройство

        Усилитель экстренного торможения не действует

        Усилитель экстренного торможения действует

        Насос

        Выкл

        Вкл

        Электромагнитный клапан отсечки главного цилиндра № 1

        Канал (A)

        Выкл (открыт)

        Вкл*

        Электромагнитный клапан отсечки главного цилиндра № 2

        Канал (B)

        Выкл (открыт)

        Вкл*

        Электромагнитный клапан удержания давления

        Канал (C)

        Выкл (открыт)

        Канал (D)

        Выкл (открыт)

        Канал (E)

        Выкл (открыт)

        Канал (F)

        Выкл (открыт)

        Электромагнитный редукционный клапан

        Канал (G)

        Выкл (закрыт)

        Канал (H)

        Выкл (закрыт)

        Канал (I)

        Выкл (закрыт)

        Канал (J)

        Выкл (закрыт)

        Tip:

        *: Электромагнитный клапан непрерывно регулирует гидравлическое давление, периодически открываясь и закрываясь в соответствии с рабочими условиями.

    3. Антипробуксовочная система (TRC)

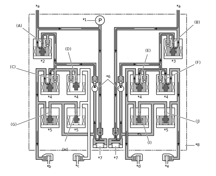
      1. Давление жидкости, создаваемое насосом, регулируется требуемым образом с помощью электромагнитного клапана отсечки главного цилиндра. Таким образом, управление рабочими тормозными цилиндрами ведущих колес осуществляется в трех режимах: повышения, удержания и понижения давления. Это позволяет свести к минимуму пробуксовку ведущих колес. Электромагнитный клапан удержания давления и электромагнитный редукционный клапан включаются и выключаются в соответствии со схемами работы АБС и EBD.

        X124166C01

        *1

        Датчик давления в главном цилиндре

        *2

        Электромагнитный клапан отсечки главного цилиндра № 1

        *3

        Электромагнитный клапан отсечки главного цилиндра № 2

        *4

        Электромагнитный клапан удержания давления

        *5

        Электромагнитный редукционный клапан

        *6

        Насос

        *7

        Бачок

        *8

        Блок управления рабочими цилиндрами тормозов

        *a

        От главного цилиндра тормозной системы в сборе

        *b

        Суппорт правого переднего тормоза

        *c

        Суппорт левого переднего тормоза

        *d

        Суппорт правого заднего тормоза

        *e

        Суппорт левого заднего тормоза

        -

        -

        Table 3. Действие блока управления рабочими цилиндрами тормозов при работе TRC*1

        Параметр

        Работа TRC

        Не действует

        Режим повышения давления

        Режим удержания давления

        Режим понижения давления

        Насос

        Выкл

        Вкл

        Электромагнитный клапан отсечки главного цилиндра № 1

        Канал (A)

        Выкл (открыт)

        ON (ВКЛ)*2

        Электромагнитный клапан отсечки главного цилиндра № 2

        Канал (B)

        Выкл (открыт)

        ON (ВКЛ)*2

        Передний тормоз

        Электромагнитный клапан удержания давления

        Канал (C)

        Выкл (открыт)

        Вкл (закрыт)

        Канал (F)

        Выкл (открыт)

        Вкл (закрыт)

        Электромагнитный редукционный клапан

        Канал (G)

        Выкл (закрыт)

        Вкл (открыт)

        Канал (J)

        Выкл (закрыт)

        Вкл (открыт)

        Задний тормоз

        Электромагнитный клапан удержания давления

        Канал (D)

        Выкл (открыт)

        Вкл (закрыт)

        Канал (E)

        Выкл (открыт)

        Вкл (закрыт)

        Электромагнитный редукционный клапан

        Канал (H)

        Выкл (закрыт)

        Канал (I)

        Выкл (закрыт)

        Tip:

        *1: В данной таблице показана работа системы управления тормозами на модели с приводом на одну ось. В случае модели с постоянным полным приводом управление задними тормозами осуществляется так же, как и управление передними тормозами.

        *2: Электромагнитный клапан непрерывно регулирует гидравлическое давление, периодически открываясь и закрываясь в соответствии с рабочими условиями.

    4. Система курсовой устойчивости (VSC)

      1. Система VSC с помощью электромагнитных клапанов регулирует давление жидкости, создаваемое насосом, и подает его в рабочие тормозные цилиндры каждого из колес в следующих 3 режимах: режиме повышения, режиме удержания и режиме понижения давления. Это позволяет свести к минимуму вероятность проскальзывания передних или задних колес.

      2. В режиме противодействия заносу передних колес тормозное усилие подается на передние колеса и заднее колесо, расположенное при повороте с внутренней стороны. Тем не менее, в некоторых случаях, обусловленных состоянием тормозной системы (включена или выключена) и состоянием автомобиля, тормозное усилие может не прикладываться к колесам, даже если для этого имеются необходимые условия. На рисунке ниже показан гидравлический контур в режиме повышения давления, в котором регулируется степень пробуксовки передних колес, когда автомобиль поворачивает вправо. В других режимах работы электромагнитный клапан удержания давления и электромагнитный редукционный клапан включаются и выключаются в соответствии со схемами работы АБС и EBD.

        X124167C01

        *1

        Датчик давления в главном цилиндре

        *2

        Электромагнитный клапан отсечки главного цилиндра № 1

        *3

        Электромагнитный клапан отсечки главного цилиндра № 2

        *4

        Электромагнитный клапан удержания давления

        *5

        Электромагнитный редукционный клапан

        *6

        Насос

        *7

        Бачок

        *8

        Блок управления рабочими цилиндрами тормозов

        *a

        От главного цилиндра тормозной системы в сборе

        *b

        Суппорт правого переднего тормоза

        *c

        Суппорт левого переднего тормоза

        *d

        Суппорт правого заднего тормоза

        *e

        Суппорт левого заднего тормоза

        -

        -

        Table 4. Действие блока управления рабочими цилиндрами тормозов при работе VSC (противодействие заносу передних колес)

        Параметр / Устройство

        Работа системы VSC

        Не действует

        Режим повышения давления

        Режим удержания давления

        Режим понижения давления

        Насос

        Выкл

        Вкл

        Электромагнитный клапан отсечки главного цилиндра № 1

        Канал (A)

        Выкл (открыт)

        Вкл*

        Электромагнитный клапан отсечки главного цилиндра № 2

        Канал (B)

        Выкл (открыт)

        Вкл*

        Передний тормоз

        Электромагнитный клапан удержания давления

        Канал (C)

        Выкл (открыт)

        Вкл (закрыт)

        Канал (F)

        Выкл (открыт)

        Вкл (закрыт)

        Электромагнитный редукционный клапан

        Канал (G)

        Выкл (закрыт)

        Вкл (открыт)

        Канал (J)

        Выкл (закрыт)

        Вкл (открыт)

        Задний тормоз

        Электромагнитный клапан удержания давления

        Канал (D)

        Выкл (открыт)

        Вкл (закрыт)

        Канал (E)

        Выкл (открыт)

        Вкл (закрыт)

        Электромагнитный редукционный клапан

        Канал (H)

        Выкл (закрыт)

        Канал (I)

        Выкл (закрыт)

        Вкл (открыт)

        Tip:

        *: Электромагнитный клапан непрерывно регулирует гидравлическое давление, периодически открываясь и закрываясь в соответствии с рабочими условиями.

      3. В режиме противодействия заносу задних колес тормозное усилие подается на переднее и заднее колеса, расположенные при повороте с внешней стороны. Тем не менее, в некоторых случаях, обусловленных состоянием тормозной системы (включена или выключена) и состоянием автомобиля, тормозное усилие может не прикладываться к колесам, даже если для этого имеются необходимые условия. На рисунке ниже показан гидравлический контур в режиме повышения давления, в котором регулируется степень пробуксовки задних колес, когда автомобиль поворачивает вправо. В других режимах работы электромагнитный клапан удержания давления и электромагнитный редукционный клапан включаются и выключаются в соответствии со схемами работы АБС и EBD.

        X124168C01

        *1

        Датчик давления в главном цилиндре

        *2

        Электромагнитный клапан отсечки главного цилиндра № 1

        *3

        Электромагнитный клапан отсечки главного цилиндра № 2

        *4

        Электромагнитный клапан удержания давления

        *5

        Электромагнитный редукционный клапан

        *6

        Насос

        *7

        Бачок

        *8

        Блок управления рабочими цилиндрами тормозов

        *a

        От главного цилиндра тормозной системы в сборе

        *b

        Суппорт правого переднего тормоза

        *c

        Суппорт левого переднего тормоза

        *d

        Суппорт правого заднего тормоза

        *e

        Суппорт левого заднего тормоза

        -

        -

        Table 5. Действие блока управления рабочими цилиндрами тормозов при работе VSC (противодействие заносу задних колес)

        Параметр / Устройство

        Работа системы VSC

        Не действует

        Режим повышения давления

        Режим удержания давления

        Режим понижения давления

        Насос

        Выкл

        Вкл

        Электромагнитный клапан отсечки главного цилиндра № 1

        Канал (A)

        Выкл (открыт)

        Вкл*

        Электромагнитный клапан отсечки главного цилиндра № 2

        Канал (B)

        Выкл (открыт)

        Вкл*

        Передний тормоз

        Электромагнитный клапан удержания давления

        Канал (C)

        Выкл (открыт)

        Вкл (закрыт)

        Канал (F)

        Выкл (открыт)

        Вкл (закрыт)

        Электромагнитный редукционный клапан

        Канал (G)

        Выкл (закрыт)

        Канал (J)

        Выкл (закрыт)

        Вкл (открыт)

        Задний тормоз

        Электромагнитный клапан удержания давления

        Канал (D)

        Выкл (открыт)

        Вкл (закрыт)

        Канал (E)

        Выкл (открыт)

        Вкл (закрыт)

        Электромагнитный редукционный клапан

        Канал (H)

        Выкл (закрыт)

        Вкл (открыт)

        Канал (I)

        Выкл (закрыт)

        Tip:

        *: Электромагнитный клапан непрерывно регулирует гидравлическое давление, периодически открываясь и закрываясь в соответствии с рабочими условиями.

    5. Координированное рулевое управление

      1. При согласованном (координированном) рулевом управлении электромагнитные клапаны работают таким же образом, как и при работе TRC или VSC.

    6. Помощь при подъеме по склону и поддержание тормозного усилия

      1. Помощь при подъеме по склону и поддержание тормозного усилия осуществляются путем закрывания электромагнитных клапанов отсечки главного цилиндра после нажатия водителем педали тормоза и сохранения некоторого гидравлического давления, которое создается насосом в рабочем тормозном цилиндре. На приведенной ниже схеме показан гидравлический контур в режиме поддержания давления.

        X124169C01

        *1

        Датчик давления в главном цилиндре

        *2

        Электромагнитный клапан отсечки главного цилиндра № 1

        *3

        Электромагнитный клапан отсечки главного цилиндра № 2

        *4

        Электромагнитный клапан удержания давления

        *5

        Электромагнитный редукционный клапан

        *6

        Насос

        *7

        Бачок

        *8

        Блок управления рабочими цилиндрами тормозов

        *a

        От главного цилиндра тормозной системы в сборе

        *b

        Суппорт правого переднего тормоза

        *c

        Суппорт левого переднего тормоза

        *d

        Суппорт правого заднего тормоза

        *e

        Суппорт левого заднего тормоза

        -

        -

        Table 6. Работа блока управления рабочими цилиндрами тормозов в режиме помощи при подъеме по склону и поддержания тормозного усилия

        Параметр / Устройство

        Работа системы помощи при подъеме по склону и системы поддержания тормозного усилия

        Не действует

        Режим удержания давления

        Режим понижения давления

        Электромагнитный клапан отсечки главного цилиндра № 1

        Канал (A)

        Выкл (открыт)

        Вкл (закрыт)

        Выкл (открыт)

        Электромагнитный клапан отсечки главного цилиндра № 2

        Канал (B)

        Выкл (открыт)

        Вкл (закрыт)

        Выкл (открыт)

        Передний тормоз

        Электромагнитный клапан удержания давления

        Канал (C)

        Выкл (открыт)

        Канал (F)

        Выкл (открыт)

        Электромагнитный редукционный клапан

        Канал (G)

        Выкл (закрыт)

        Канал (J)

        Выкл (закрыт)

        Задний тормоз

        Электромагнитный клапан удержания давления

        Канал (D)

        Выкл (открыт)

        Канал (E)

        Выкл (открыт)

        Электромагнитный редукционный клапан

        Канал (H)

        Выкл (закрыт)

        Канал (I)

        Выкл (закрыт)