CAN COMMUNICATION SYSTEM(for RHD) ECM Communication Stop Mode

DTC Code DTC Name
ECM Communication Stop Mode

DESCRIPTION

Detection Item

Symptom

Trouble Area

ECM Communication Stop Mode

Either condition is met:

  • Communication stop for "ECM (Engine)" is indicated on the "Communication Bus Check" screen of the GTS.

    Click hereClick here

  • Communication system DTCs (DTCs that start with U) that are output correspond to "ECM Communication Stop Mode" in "DTC Combination Table".

    Click hereClick hereClick here

  • Power source or inside ECM

  • ECM CAN main wire or connector

  • ECM

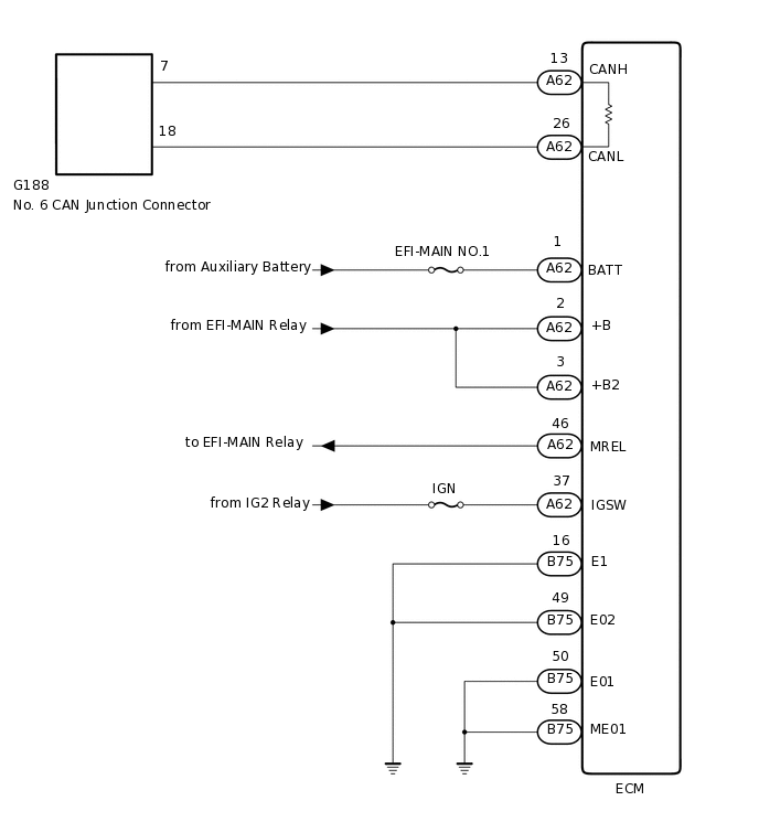
WIRING DIAGRAM

C299918E05

CAUTION / NOTICE / HINT

Note:
  • Because the order of diagnosis is important to allow correct diagnosis, make sure to begin troubleshooting using How to Proceed with Troubleshooting when CAN communication system related DTCs are output.

    Click here

  • Before measuring the resistance of the CAN bus, turn the power switch off and leave the vehicle for 1 minute or more without operating the key, switches or opening or closing the doors. After that, disconnect the cable from the negative (-) auxiliary battery terminal and leave the vehicle for 1 minute or more before measuring the resistance.

  • After turning the power switch off, waiting time may be required before disconnecting the cable from the auxiliary battery terminal. Therefore, make sure to read the disconnecting the cable from the auxiliary battery terminal notice before proceeding with work.

    Click hereClick hereClick here

  • Inspect the fuses for circuits related to this system before performing the following procedure.

  • DTC check procedure: Drive the vehicle for 50 seconds at a speed of 20 km/h (12 mph).

  • After the repair, perform CAN Bus Check and check that all the ECUs and sensors connected to the CAN communication system are displayed.

    Click hereClick hereClick here

Tip:
  • Operating the power switch, any switches or any doors triggers related ECU and sensor communication with the CAN, which causes resistance variation.

  • Even after DTCs are cleared, if a DTC is stored again after driving the vehicle for a while, the malfunction may be occurring due to vibration of the vehicle. In such a case, wiggling the ECUs or wire harness while performing the inspection below may help determine the cause of the malfunction.

PROCEDURE

  1. CHECK FOR OPEN IN CAN BUS WIRE (ECM CAN MAIN WIRE)

    1. C228681C07

      *a

      Front view of wire harness connector

      (to ECM)

      Disconnect the cable from the negative (-) auxiliary battery terminal.

    2. Disconnect the ECM connector.

    3. Measure the resistance according to the value(s) in the table below.

      Standard Resistance

      Tester Connection

      Connector

      Specified Condition

      A62-13 (CANH) - A62-26 (CANL)

      Cable disconnected from negative (-) auxiliary battery terminal

      108 to 132 Ω

    Result

    Proceed to

    OK

    NG

    NG

    REPAIR OR REPLACE ECM CAN MAIN WIRE OR CONNECTOR (CANH, CANL)

    OK
  2. CHECK HARNESS AND CONNECTOR (ECM - BATTERY AND BODY GROUND)

    1. Connect the cable to the negative (-) auxiliary battery terminal.

      Note:

      When disconnecting the cable, some systems need to be initialized after the cable is reconnected.

      Click hereClick hereClick here

      C229008C55

      *a

      Front view of wire harness connector

      (to ECM)

      -

      -

    2. Disconnect the ECM connector.

    3. Measure the voltage according to the value(s) in the table below.

      Standard Voltage

      Tester Connection

      Condition

      Specified Condition

      A62-1 (BATT) - Body ground

      Power switch off

      11 to 14 V

      A62-2 (+B) - Body ground

      Auxiliary battery positive (+) voltage applied to terminal A62-46 (MREL)

      11 to 14 V

      A62-3 (+B2) - Body ground

      Auxiliary battery positive (+) voltage applied to terminal A62-46 (MREL)

      11 to 14 V

      A62-37 (IGSW) - Body ground

      Power switch on (IG)

      11 to 14 V

    4. Measure the resistance according to the value(s) in the table below.

      Standard Resistance

      Tester Connection

      Condition

      Specified Condition

      B75-16 (E1) - Body ground

      Always

      Below 1 Ω

      B75-49 (E02) - Body ground

      Always

      Below 1 Ω

      B75-50 (E01) - Body ground

      Always

      Below 1 Ω

      B75-58 (ME01) - Body ground

      Always

      Below 1 Ω

    Result

    Proceed to

    OK

    NG

    OK

    REPLACE ECM

    NG

    REPAIR OR REPLACE HARNESS OR CONNECTOR