СЕНСОРНАЯ СИСТЕМА ПОМОЩИ ПРИ ПАРКОВКЕ TOYOTA, Diagnostic DTC:C1AEC

Код DTC Наименование DTC
C1AEC Цепь обмена данными с передним датчиком

ОПИСАНИЕ

Этот код DTC регистрируется в случае обрыва или короткого замыкания в линии передачи данных между передними датчиками и ЭБУ, а также при неисправности переднего датчика.

№ DTC Неисправность Условие обнаружения DTC Неисправный участок
C1AEC Цепь обмена данными с передним датчиком Обрыв или короткое замыкание в линии передачи данных между передними датчиками и ЭБУ, либо неисправность в переднем датчике, выявленная в режиме инициализации после включения зажигания (IG).
  • Цепь переднего ультразвукового датчика

  • ЭБУ предупреждения о недопустимой дистанции

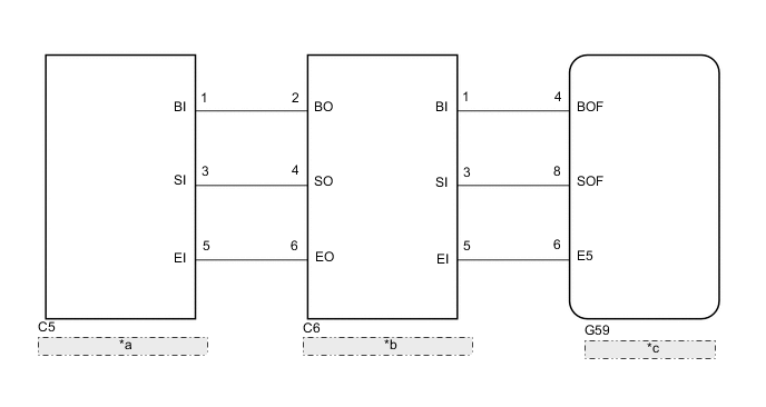
СХЕМА ЭЛЕКТРИЧЕСКИХ СОЕДИНЕНИЙ

B006OE4E01
*a Ультразвуковой датчик № 1 (правый передний угловой датчик)
*b Ультразвуковой датчик № 1 (левый передний угловой датчик)
*c ЭБУ предупреждения о недопустимой дистанции в сборе

ПОРЯДОК ВЫПОЛНЕНИЯ


  1. ПРОВЕРЬТЕ КОД DTC (C1AEC)


    1. Удалите коды DTC.

      Нажмите здесь Click here


      Body Electrical > Clearance Sonar > Clear DTCs
    2. Еще раз проверьте DTC.

      Нажмите здесь Click here


      Body Electrical > Clearance Sonar > Trouble Codes
      Результат
      Результат Перейти к
      Выводится DTC C1AEC А
      Коды DTC не выводятся B

    B
    А
  2. ПРОВЕРЬТЕ ЖГУТ ПРОВОДОВ И РАЗЪЕМ (ЭБУ ПРЕДУПРЕЖДЕНИЯ О НЕДОПУСТИМОЙ ДИСТАНЦИИ - УЛЬТРАЗВУКОВОЙ ДАТЧИК № 1 (ЛЕВЫЙ ПЕРЕДНИЙ УГЛОВОЙ ДАТЧИК))


    1. Отсоедините разъем G59 ЭБУ предупреждения о недопустимой дистанции.

    2. Отсоедините разъем C6 ультразвукового датчика № 1 (левого переднего углового датчика).

    3. Измерьте сопротивление в соответствии со значениями, приведенными в таблице ниже.

      Номинальное сопротивление
      Подключение диагностического прибора Значение Заданные условия
      G59-4 (BOF) - C6-1 (BI) Всегда Менее 1 Ом
      G59-8 (SOF) - C6-3 (SI) Всегда Менее 1 Ом
      G59-6 (E5) - C6-5 (EI) Всегда Менее 1 Ом
      G59-4 (BOF) - масса Всегда 10 кОм или более
      G59-8 (SOF) - масса Всегда 10 кОм или более
      G59-6 (E5) - масса Всегда 10 кОм или более
      Результат
      Результат
      OK
      NG

    NG
    OK
  3. ПРОВЕРЬТЕ ЖГУТ ПРОВОДОВ И РАЗЪЕМ (УЛЬТРАЗВУКОВОЙ ДАТЧИК № 1 (ЛЕВЫЙ ПЕРЕДНИЙ УГЛОВОЙ ДАТЧИК) - УЛЬТРАЗВУКОВОЙ ДАТЧИК № 1 (ПРАВЫЙ ПЕРЕДНИЙ УГЛОВОЙ ДАТЧИК))


    1. Отсоедините разъем C6 ультразвукового датчика № 1 (левого переднего углового датчика).

    2. Отсоедините разъем C5 ультразвукового датчика № 1 (правого переднего углового датчика).

    3. Измерьте сопротивление в соответствии со значениями, приведенными в таблице ниже.

      Номинальное сопротивление
      Подключение диагностического прибора Условие Заданные условия
      C6-2 (BO) - C5-1 (BI) Всегда Менее 1 Ом
      C6-4 (SO) - C5-3 (SI) Всегда Менее 1 Ом
      C6-6 (EO) - C5-5 (EI) Всегда Менее 1 Ом
      C6-2 (BO) - масса Всегда 10 кОм или более
      C6-4 (SO) - масса Всегда 10 кОм или более
      C6-6 (EO) - масса Всегда 10 кОм или более
      Результат
      Результат
      OK
      NG

    NG
    OK
  4. ПРОВЕРЬТЕ УЛЬТРАЗВУКОВОЙ ДАТЧИК № 1 (ПРАВЫЙ ПЕРЕДНИЙ УГЛОВОЙ ДАТЧИК)


    1. Снимите ультразвуковой датчик № 1 (правый передний угловой).

      Нажмите здесь Click here

    2. Проверьте ультразвуковой датчик № 1 (правый передний угловой).

      Нажмите здесь Click here

      Результат
      Результат
      OK
      NG

    NG
    OK
  5. ПРОВЕРЬТЕ УЛЬТРАЗВУКОВОЙ ДАТЧИК № 1 (ЛЕВЫЙ ПЕРЕДНИЙ УГЛОВОЙ ДАТЧИК)


    1. Снимите ультразвуковой датчик № 1 (левый передний угловой датчик).

      Нажмите здесь Click here

    2. Проверьте ультразвуковой датчик № 1 (левый передний угловой).

      Нажмите здесь Click here

      Результат
      Результат
      OK
      NG

    NG
    OK
  6. ЗАМЕНИТЕ УЛЬТРАЗВУКОВОЙ ДАТЧИК № 1 (ПРАВЫЙ ПЕРЕДНИЙ УГЛОВОЙ ДАТЧИК)


    1. Замените ультразвуковой датчик № 1 (правый передний угловой датчик) заведомо исправным.

      Нажмите здесь Click here

      Результат
      Результат
      ДАЛЕЕ

    ДАЛЕЕ
  7. ПРОВЕРЬТЕ КОД DTC (C1AEC)


    1. Удалите коды DTC.

      Нажмите здесь Click here


      Body Electrical > Clearance Sonar > Clear DTCs
    2. Проверьте наличие кодов DTC.

      Нажмите здесь Click here


      Body Electrical > Clearance Sonar > Trouble Codes
      Результат
      Результат Перейти к
      Выводится DTC C1AEC А
      Коды DTC не выводятся B

    B
    А
  8. ЗАМЕНИТЕ УЛЬТРАЗВУКОВОЙ ДАТЧИК № 1 (ЛЕВЫЙ ПЕРЕДНИЙ УГЛОВОЙ ДАТЧИК)


    1. Замените ультразвуковой датчик № 1 (левый передний угловой датчик) заведомо исправным.

      Нажмите здесь Click here

      Результат
      Результат
      ДАЛЕЕ

    ДАЛЕЕ
  9. ПРОВЕРЬТЕ КОД DTC (C1AEC)


    1. Удалите коды DTC.

      Нажмите здесь Click here


      Body Electrical > Clearance Sonar > Clear DTCs
    2. Проверьте наличие кодов DTC.

      Нажмите здесь Click here


      Body Electrical > Clearance Sonar > Trouble Codes
      Результат
      Результат Перейти к
      Выводится DTC C1AEC А
      Коды DTC не выводятся B

    А
    B